home page > Annunci immobiliari in Italia > Emilia-Romagna > Modena > Castelvetro di Modena > appartamenti in vendita > Scheda immobile

Appartamento in vendita a Castelvetro di Modena

COMPILA IL MODULO SOTTOSTANTE PER RICEVERE MAGGIORI INFORMAZIONI







Invia la richiesta ad altre agenzie
Accetto il trattamento dei miei dati



Homes? real estate s.r.l.

l.go giambellino, /b 4
42121 Reggio nell'Emilia

3319996474    3898322490    Riferimenti: Teodoro Laganà

Castelvetro di Modena
Prezzo: € 64.547
1
287



Descrizione:
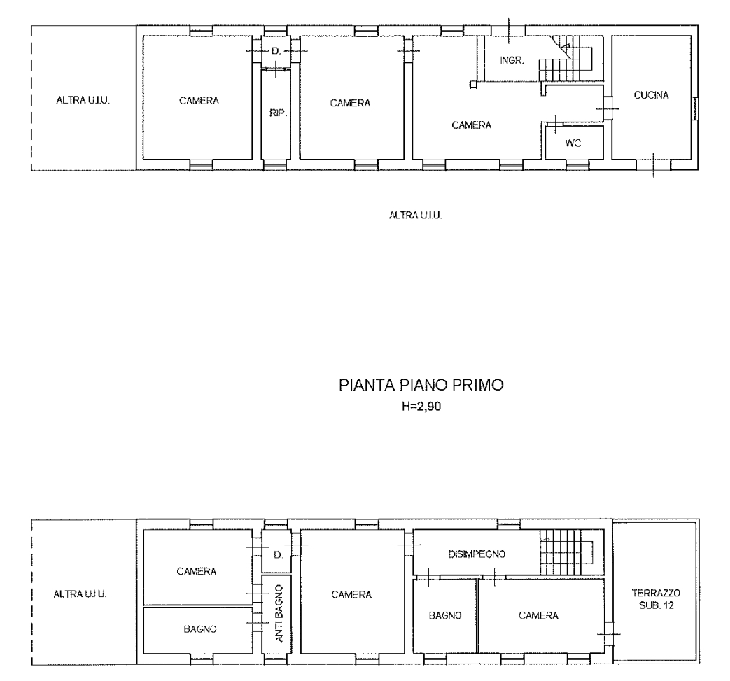
Rif: asta modena 013 - comune di castelvetro di modena alla via san polo n. 19, abitazione facente parte di un complesso immobiliare composto da più unitàimmobiliari ed aree comuni, composta da piano terra e piano primopiano terra: ingresso, soggiorno, cucina, bagno, n. 2 camere da letto, disimpegno e ripostiglioprimo piano, cui si accede da scala interna, sono presenti n. 3 camere da letto, disimpegno, antibagno e n. 2 bagni, oltreterrazzo con tettoia.l'abitazione sviluppa complessivamente una superficie lorda (piano terra е piano primo) di mq. 287,00 circa oltre terrazza di circa mq. 24,00data asta 27 novembre 2025 consulenza specializzata e assistenza a 360° per un acquisto in asta sicuro e trasparente.i nostri professionisti offrono i seguenti servizi:-ricerca immobili ed invio proposte personalizzate in base alle esigenze del cliente-visita immobile-consulenza finanziaria-esame della perizia e della ulteriore documentazione-assistenza tecnicaanalisi dei costi-assistenza in partecipazione e deposito delle offerte-assistenza post aggiudicazione fino a consegna chiaviper ulteriori informazioni e per fissare una visita chiama il anna rita




Caratteristiche immobile:
Codice inserzione: 1763344555
Rif. Annuncio: 1357640/1668/ASTA MODENA 013
Provincia: Modena
Comune: Castelvetro di Modena
Superficie (Mq) : 287 Mq.
Tipo immobile: Appartamento
Stato immobile: usato da riattare
Bagni: 1

Costi:
Prezzo € 64.547


Efficienza energetica: