Descrizione:
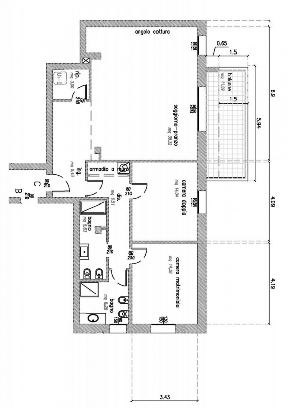
Proponiamo in vendita a maranello, in posizione centralissima, a pochi passi dalla chiesa e dallo stabilimento ferrari, appartamenti moderni e luminosi progettati per offrire comfort, sicurezza e design contemporaneo.nello specifico, l'appartamento si compone di ingresso, ampia zona giorno con angolo cottura, 2 camere matrimoniali, due bagni, un ripostiglio ed un ampio terrazzo. Disponibili garage singoli o doppi, da conteggiare a parte.dotazioni di livello: ascensore, garage singoli o doppi, posti auto di pertinenza.edifici ad altissime prestazioni energetiche e sismiche, per vivere con tranquillità e stile.� posizione strategica, ben collegata e vicina a tutti i servizi.perfetti per famiglie e professionisti che cercano una casa di qualità superiore a maranello.