Descrizione:
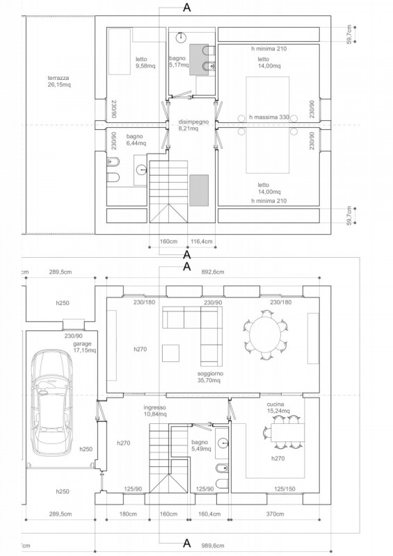
Nella campagna di maranello, a meno di 3 minuti dallo stabilimento ferrari s.p.a., proponiamo in vendita una villa a schiera di prossima costruzione, con ingresso completamente indipendente e ampio giardino di proprietà esclusiva.la villa è cosĂ composta:accedendo agli spazi interni troviamo, al piano terra, un ingresso, un'ampia zona giorno di oltre 35 mq, cucina abitabile, bagno/lavanderia e garage. Attraverso la scala all'ingresso si accede alla zona notte situata al piano primo e composta da due camere matrimoniali, una camera singola/studio, due bagni e un ampio terrazzo di oltre 25 mq.l'immobile verrà realizzato con le più moderne tecniche costruttive e sarà in classe energetica a4 e in classe sismica a, le massime prestazioni raggiungibili con le tecnologie costruttive odierne.finiture di pregio e possibilità di personalizzare le finiture!!