Descrizione:
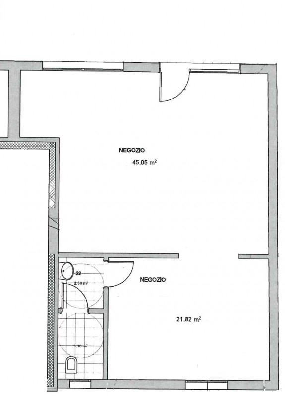
Procasa propone un' opportunità immobiliare a mirandola. Il locale vanta una superficie utile di 70 mq con bagno finestrato, offrendo ampie possibilità per vari tipi di business.l'immobile è collocato al piano terra con spazio parcheggio adibito sul fronte, garantendo un'elevata visibilità per i residenti in zona e comodità per la clientela.il negozio è dotato di ampie vetrine che offrono ottima esposizione per i tuoi prodotti o servizi. Inoltre, il locale è facilmente personalizzabile secondo le esigenze del tuo business qualunque sia la tua visione imprenditoriale!che tu stia cercando uno spazio commerciale per espandere la tua attività già avviata o iniziare qualcosa di nuovo, questo negozio può fare al caso tuo. per ulteriori informazioni alessandro