home page > Annunci immobiliari in Italia > Emilia-Romagna > Modena > Sassuolo > Terreni in vendita > Scheda immobile

Terreni in vendita a Sassuolo

COMPILA IL MODULO SOTTOSTANTE PER RICEVERE MAGGIORI INFORMAZIONI







Invia la richiesta ad altre agenzie
Accetto il trattamento dei miei dati



Immobiliare maranello

Via giovanni verga 12
41053 Maranello (MO)

3461848313    Riferimenti: Luca Sciasci

Sassuolo
Prezzo: € 320.000
750



Descrizione:
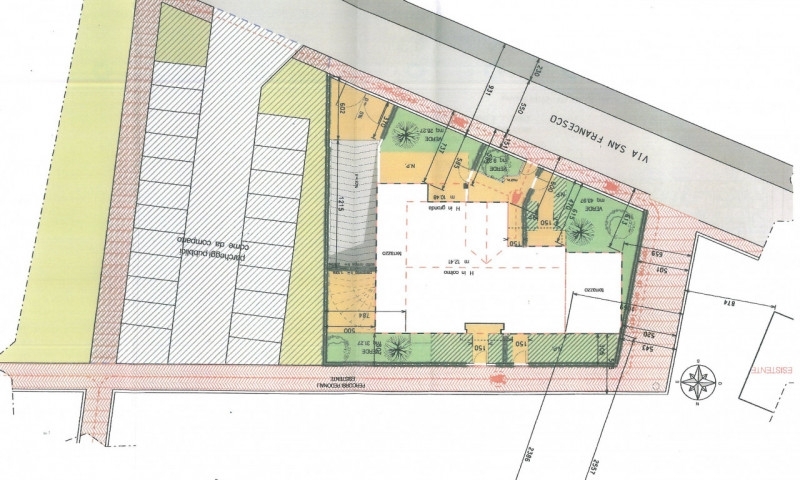
Si propone in vendita lotto edificabile in zona strategica a sassuolo.il lotto fa parte di uno piano particolareggiato dei primi anni 2000 che ha visto riqualificare l'intero comparto del parco amico.il lotto, facendo parte di un p. P. Di questo tipo presenta ancora degli indici di edificabilità molto elevati i quali permettono ancora oggi di edificare fino a 740 mq di superficie utile (su).presso i nostri uffici si può visionare il progetto presentato nel 2011, ad oggi ancora valido ed attuabile, per la realizzazione di una palazzina di 9 unità abitative oltre a piano interrato per i garage - circa 930 mq commerciali totali.opportunita' piu' unica che rara per chi desidera costruire in un lotto che permette di realizzare delle superfici commerciali ad oggi non piu' ottenibili!




Caratteristiche immobile:
Codice inserzione: 1758596362
Rif. Annuncio: MITEDMOSA01
Provincia: Modena
Comune: Sassuolo
Zona: Braida  
Superficie (Mq) : 750 Mq.
Tipo immobile: Terreni

Costi:
Prezzo € 320.000


Efficienza energetica: