home page > Annunci immobiliari in Italia > Emilia-Romagna > Modena > Sassuolo > Terreni in vendita > Scheda immobile

Terreni in vendita a Sassuolo

COMPILA IL MODULO SOTTOSTANTE PER RICEVERE MAGGIORI INFORMAZIONI







Invia la richiesta ad altre agenzie
Accetto il trattamento dei miei dati



Casaamodena.it

Via luigi vaccari 76
41121 Modena

0598754994

Sassuolo
Prezzo: € 350.000
G
750



Descrizione:
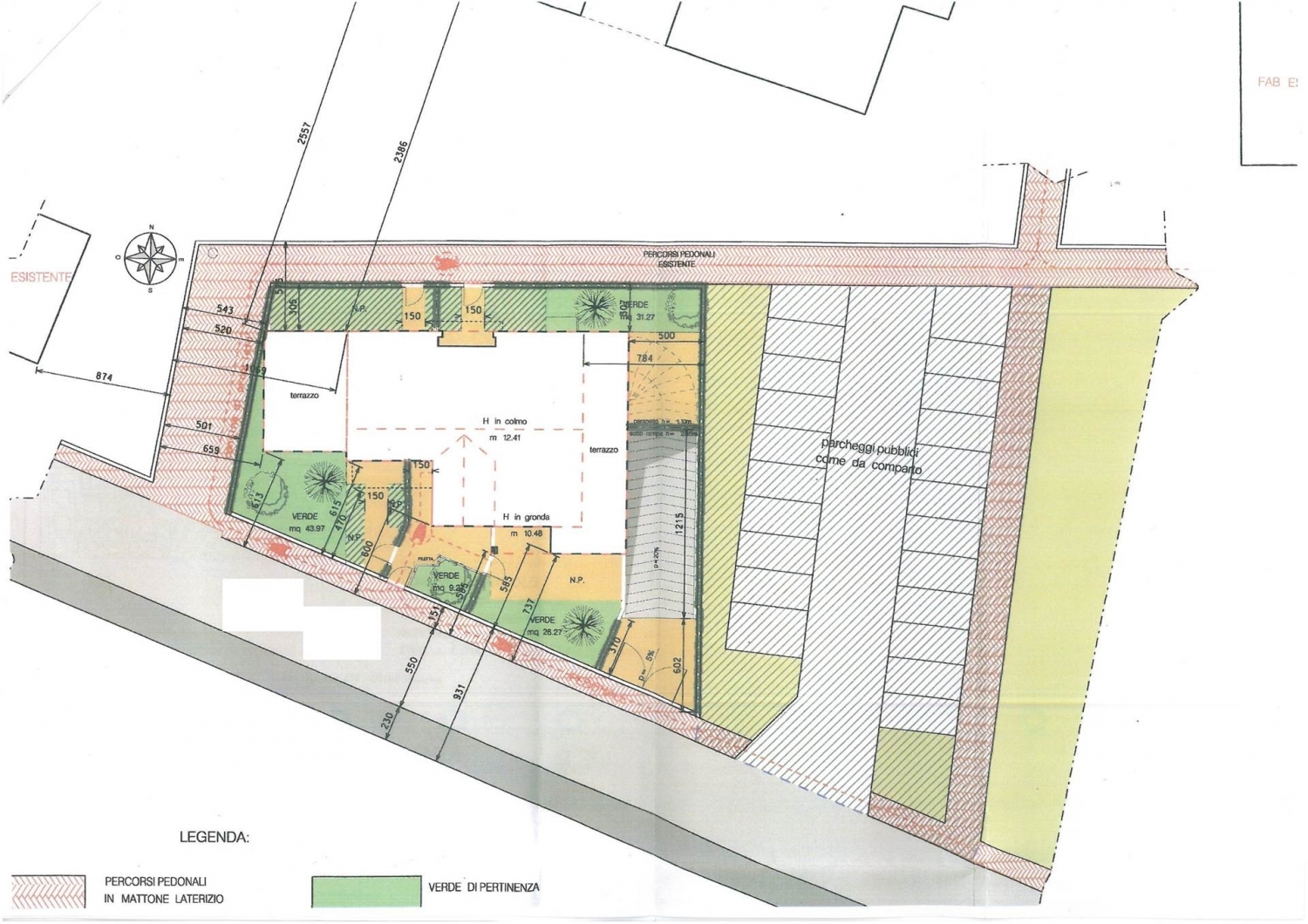
Sassuolo (mo) - zona vicino al centro;vendita - lotto edificabile con progetto approvato per 9 appartamenti con garage.in zona già urbanizzata; servizi e scuole a due passi dall'intervento. Proponiamo lotto di terreno edificabile con progetto approvato per 9 appartamenti con 9 garage. il totale dei mq edificabili è di circa 1.000 mq. In ufficio disponiamo delle planimetrie delle varie unità immobiliari e sono visionabili previo appuntamento. classe energetica: g




Caratteristiche immobile:
Codice inserzione: 1769999565
Rif. Annuncio: SASSUOLO77P
Provincia: Modena
Comune: Sassuolo
Superficie (Mq) : 750 Mq.
Tipo immobile: Terreni

Costi:
Prezzo € 350.000


Efficienza energetica:
Classe energetica: G