home page > Annunci immobiliari in Italia > Emilia-Romagna > Parma > Noceto > Negozi uffici capannoni in vendita > Scheda immobile

Negozi uffici capannoni in vendita a Noceto

COMPILA IL MODULO SOTTOSTANTE PER RICEVERE MAGGIORI INFORMAZIONI







Invia la richiesta ad altre agenzie
Accetto il trattamento dei miei dati



Ensemble immobiliare srl

Via trento 28
43121 Parma

0521782172    Riferimenti: Agenzia

Noceto
Prezzo: info in agenzia
G
2
2000
Ultimo piano
1



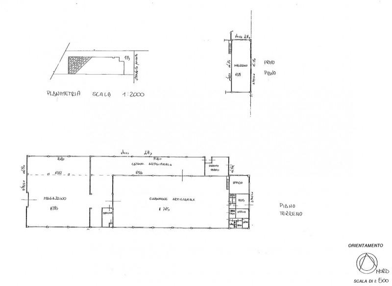
Descrizione:
'ensemble immobiliare srl' propone in vendita interessante capannone a schiera, ubicato nella servita zona industriale di noceto, in posizione comoda all'autostrada e alle principali vie di comunicazione.ideale per l'avvio di attività artigianali e produttive, la soluzione si sviluppa su due livelli e misura circa 2000 mq totali.si compone di generoso vano principale, aree magazzino/deposito, 200 mq di uffici, spogliatoi e servizi.si correda infine di ampia area esterna di 1700 mq ideale per la manovra di mezzi pesanti e ad uso parcheggio.in virtù delle dimensioni e della disposizione degli spazi la soluzione ben si presta ad eventuale frazionamento.altezza dei locali 7.5 mt sotto trave.impiantistica a norma.libero a rogito.per informazioni ensemble immobiliare s. R. L. Via trento, 28 43122 parmamail: : immobiliare srl' offers for sale an interesting terraced warehouse, located in the well-served industrial area of ​​noceto, in a convenient position for the motorway and the main communication routes.ideal for starting artisanal and productive activities, the solution is spread over two levels and measures approximately 2000 square meters in total.it consists of a generous main room, warehouse/storage areas, 200 square meters of offices, changing rooms and services.finally, it is equipped with a large external area of ​​1700 square meters ideal for maneuvering heavy vehicles and for parking.by virtue of the size and layout of the spaces, the solution is well suited to possible subdivision.height of the rooms 7.5 m under the beam.systems in compliance with the law.free upon deed.for information ensemble immobiliare s. R. L. Via trento, 28 43122 parmamail: :




Caratteristiche immobile:
Codice inserzione: 1763611061
Rif. Annuncio: CapannoneNoceto.1
Provincia: Parma
Comune: Noceto
Superficie (Mq) : 2000 Mq.
Tipo immobile: Negozi uffici capannoni
Stato immobile: usato
Anno costruzione/ristrutturazione: 1990
Piano: Ultimo piano
Posti auto scoperti: 1 posto auto
Bagni: 2

Costi:
Prezzo info in agenzia


Efficienza energetica:
Classe energetica: G
Indice di prestazione energetica (EPgl): 175 kWh/mc annui