home page > Annunci immobiliari in Italia > Emilia-Romagna > Piacenza > Monticelli d'Ongina > appartamenti in vendita > Scheda immobile

Appartamento in vendita a Monticelli d'Ongina

COMPILA IL MODULO SOTTOSTANTE PER RICEVERE MAGGIORI INFORMAZIONI







Invia la richiesta ad altre agenzie
Accetto il trattamento dei miei dati



Agenzia immobiliare concordia

Via aldo moro 11
29010 Monticelli d'Ongina (PC)

0523077223

Monticelli d'Ongina
Prezzo: € 34.627
1
1
80
Piano terra



Descrizione:
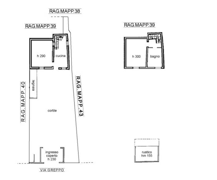
Vendesi appartamento a monticelli d'ongina in provincia di piacenza.l'immobile unifamiliare è costituito da un fabbricato abitativo e da uno pertinenziale.il fabbricato abitativo è composto al piano terra da soggiorno e cucina, mentre al primo piano da bagno, camera da letto e da disimpegno. In soggiorno è presente un camino a legna con focolare scoperto. Il locale bagno è completo di lavabo, bidet, doccia e vasca. sono presenti arredi nel locale letto e bagno al piano primo.il fabbricato pertinenziale è composto da ingresso coperto al piano terra che si affaccia sulla via, mentre al primo piano da un locale al rustico raggiungibile solo con l'utilizzo di una scala.giardino di proprietà. eu. 34.627,50 (offerta minima d'asta) classe energetica: non indicata




Caratteristiche immobile:
Codice inserzione: 1762403523
Rif. Annuncio: 8317RA80618
Provincia: Piacenza
Comune: Monticelli d'Ongina
Zona: Fogarole  
Superficie (Mq) : 80 Mq.
Tipo immobile: Appartamento
Piano: Piano terra
Camere: 1
Bagni: 1

Costi:
Prezzo € 34.627


Efficienza energetica:
Riscaldamento: autonomo