home page > Annunci immobiliari in Italia > Emilia-Romagna > Ravenna > Cervia > Case e ville a schiera in vendita > Scheda immobile

Case e ville a schiera in vendita a Cervia

COMPILA IL MODULO SOTTOSTANTE PER RICEVERE MAGGIORI INFORMAZIONI







Invia la richiesta ad altre agenzie
Accetto il trattamento dei miei dati



Zoffoli immobiliare

Viale matteotti
48015 Cervia (RA)

0544.995261    0544 995261

Cervia
Prezzo: € 1.050.000
C
2
130



Descrizione:
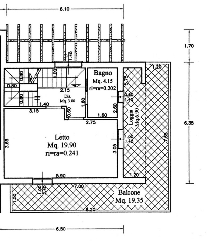
Milano marittima - villa a schiera di testa con giardino. In zona signorile, residenziale e a pochi passi dalla spiaggia, si vende splendida villa a schiera di testa , di recente costruzione, sviluppata su più livelli. Al piano terra grande giardino privato di circa 130 mq dal quale si accede tramite un portico al soggiorno con angolo cottura, al piano superiore 2 camere, un bagno e uno splendido terrazzo di 26 mq. Al piano mansardato un camera matrimoniale, un bagno/lavanderia e un ripostiglio. La villa è dotata di tutti i comfort, aria condizionata, riscaldamento autonomo, 2 posti auto. Prezzo richiesto: €




Caratteristiche immobile:
Codice inserzione: 1771803908
Rif. Annuncio: VE 126
Provincia: Ravenna
Comune: Cervia
Superficie (Mq) : 130 Mq.
Tipo immobile: Case e ville a schiera
Stato immobile: recente
Anno costruzione/ristrutturazione: 2008
Arredato:
Stato al rogito: Libero
Bagni: 2

Costi:
Prezzo € 1.050.000
Spese condominiali: € 0


Efficienza energetica:
Classe energetica: C
Tipologia riscaldamento: energia elettrica