Descrizione:
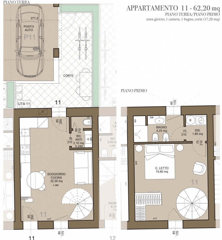
Bilocali esclusivi: stile, storia e mare a due passinel cuore del centro storico di cervia, a soli 800 metri dal mare, proponiamo bilocali unici, pensati per chi desidera vivere in una cornice esclusiva senza rinunciare al comfort moderno.spazi progettati con cura, finiture di pregio e ampie possibilità di personalizzazione ti permettono di creare la tua casa su misura.ogni unità offre luminosi ambienti open space, molte con spazi esterni privati, perfetti per godersi l'atmosfera rilassata della città.a partire da 69 mq e 420.000 euro, queste abitazioni rappresentano un'opportunità irripetibile per vivere in una delle zone più affascinanti di cervia. Posto auto o garage privato inclusi.� contattaci subito per maggiori informazioni e per scoprire il tuo futuro appartamento: le migliori soluzioni sono già in prenotazione!