Descrizione:
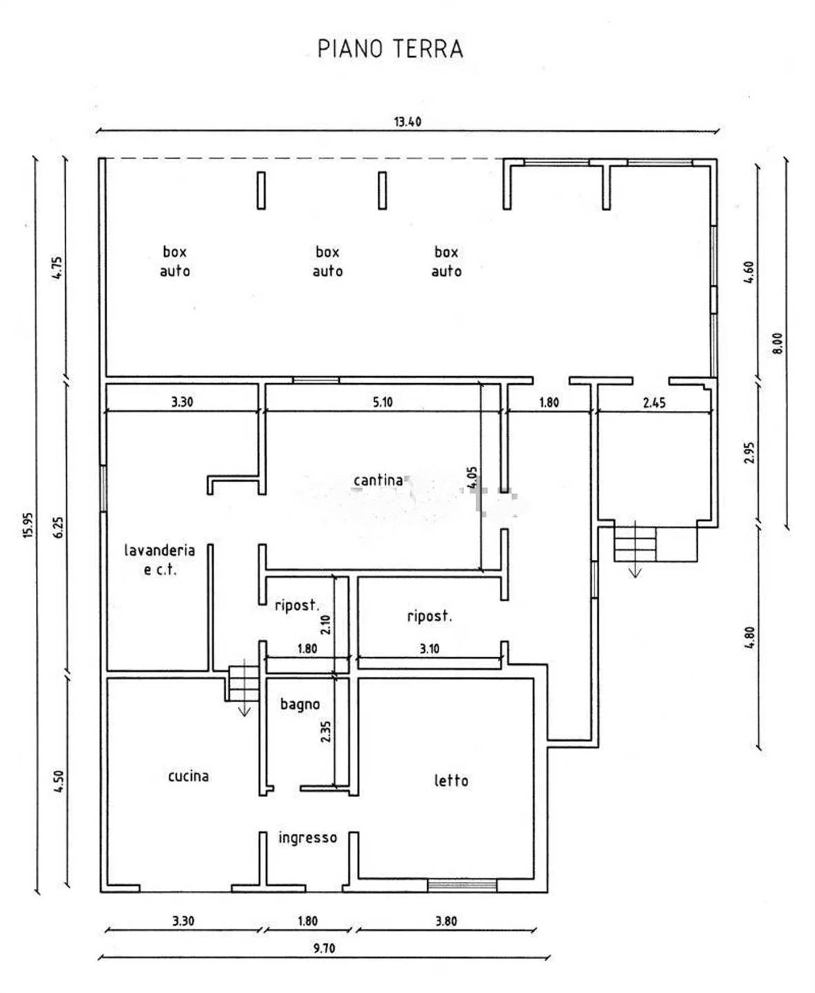
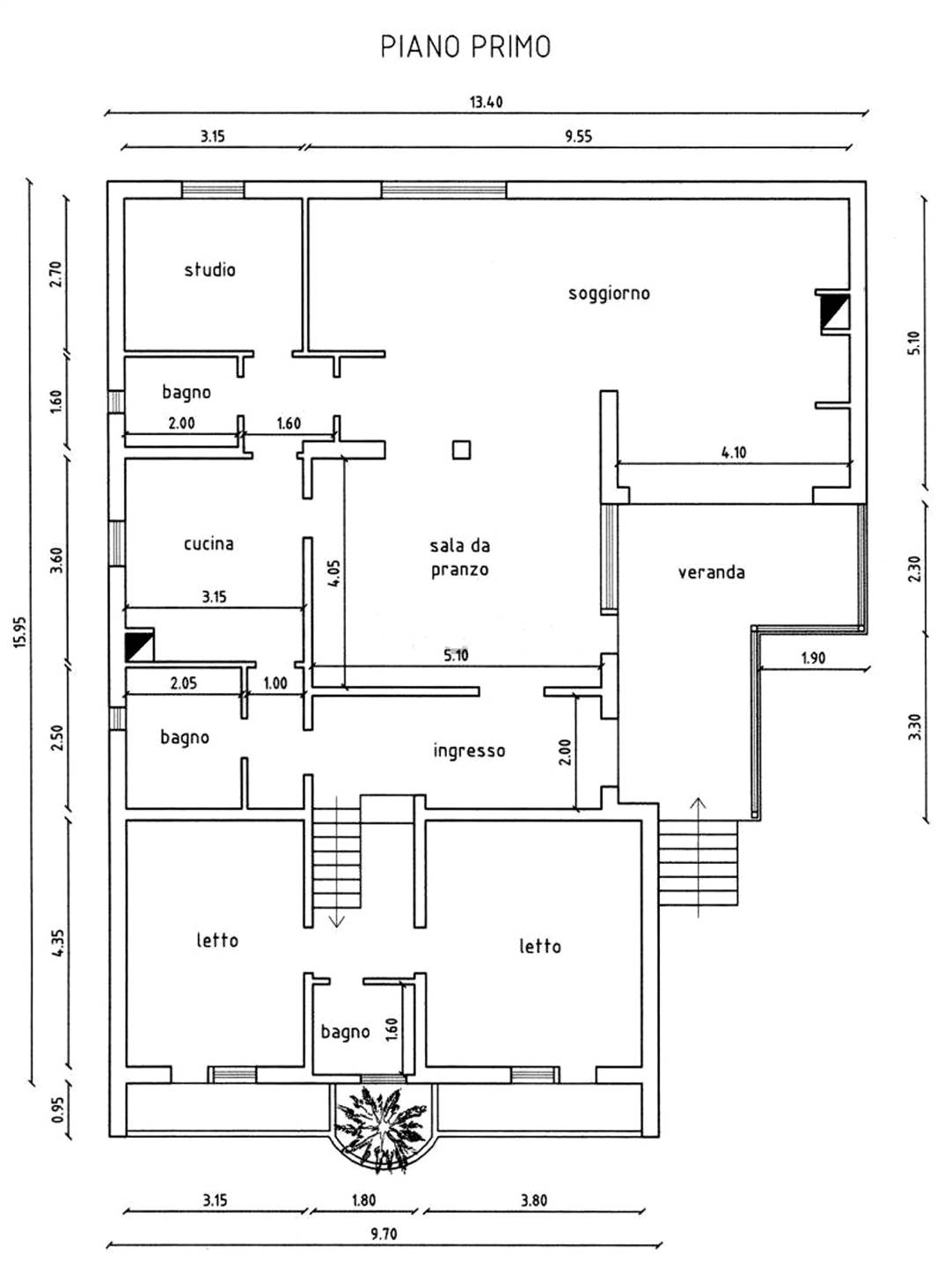
Conselice proponiamo villa, sita nelle immediate vicinanze del centro storico vicino a tutti i servizi.questa proprietà si sviluppa su due livelli, per un totale di 214 mq, con un'ottima distribuzione degli spazi.al piano terra, troverete 46 mq di area vivibile, mentre al primo piano si estendono 168 mq, offrendo ampie possibilità di personalizzazione.la villa è composta da 11 vani, che includono 4 camere da letto e 4 bagni, perfetti per famiglie numerose o per chi desidera avere spazio in abbondanza. La cucina abitabile è ideale per momenti conviviali, mentre il soggiorno doppio con camino offre un ambiente elegante e accogliente. La proprietà è in buone condizioni e dotata di riscaldamento autonomo, garantendo comfort e autonomia.all'esterno, potrete godere di un giardino di 400 mq, perfetto per trascorrere piacevoli giornate all'aperto.completa la proprietà una cantina di 75 mq e un box/garage di 63 mq al piano seminterrato.questa villa rappresenta un'opportunità unica per chi cerca una soluzione abitativa di qualità in una zona tranquilla e ben servita. Non perdere l'occasione di visitarla! classe energetica: g