home page > Annunci immobiliari in Italia > Emilia-Romagna > Ravenna > Faenza > appartamenti in vendita > Scheda immobile

Appartamento in vendita a Faenza

COMPILA IL MODULO SOTTOSTANTE PER RICEVERE MAGGIORI INFORMAZIONI







Invia la richiesta ad altre agenzie
Accetto il trattamento dei miei dati



Il labirinto immobiliare snc

Coso matteotti, 22
48018 Faenza (RA)

054626805

Faenza
Prezzo: € 292.000
A4
2
2
119
98
100 Mq



Descrizione:
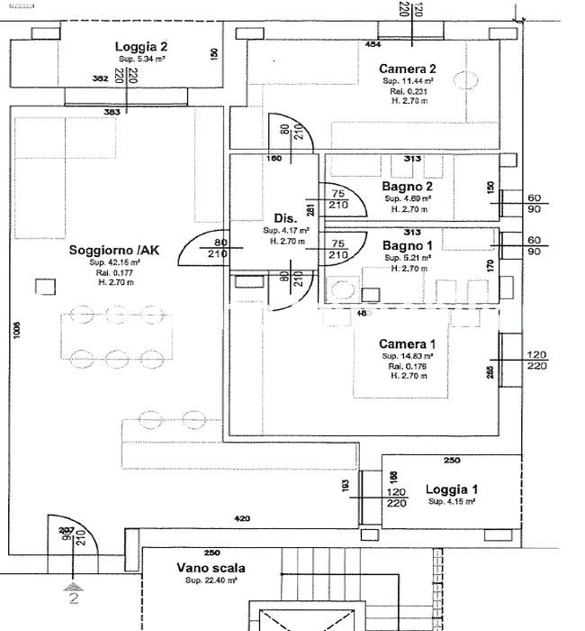
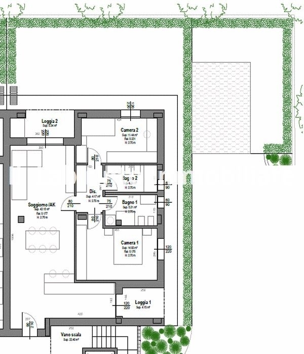
Faenza, in zona strategica vicino ai servizi e alle principali vie di raccordo, in nuovo complesso in fase di progettazione che prevede la realizzazione di due palazzine da 15 appartamenti ognuna, proponiamo appartamento posto al piano terra cosù composto: ingresso su soggiorno con cucina a vista di mq. 42,15 in affaccio a due logge aperte su giardino privato di mq. 100. Il disimpegno notte conduce alle due camere da letto e ai due bagni finestrati. Possibilità di acquisto garage e/o cantina e/o posto auto. Finiture personalizzabili. Impianto fotovoltaico privato e per le parti comuni. Informazioni su progetti e prenotazioni in agenzia.rif. Unita' 2




Caratteristiche immobile:
Codice inserzione: 1773205553
Rif. Annuncio: 1933
Provincia: Ravenna
Comune: Faenza
Superficie (Mq) : 119 Mq.
Tipo immobile: Appartamento
Stato immobile: nuovo
Anno costruzione/ristrutturazione: 2026
Piano: Piano terra
Camere: 2
Giardino : 100 Mq.
Tipologia giardino : Privato
Bagni: 2

Costi:
Prezzo € 292.000
Spese condominiali: € 0


Efficienza energetica:
Classe energetica: A4
Riscaldamento: autonomo