home page > Annunci immobiliari in Italia > Emilia-Romagna > Reggio nell'Emilia > Quattro Castella > Terreni in vendita > Scheda immobile

Terreni in vendita a Quattro Castella

COMPILA IL MODULO SOTTOSTANTE PER RICEVERE MAGGIORI INFORMAZIONI







Invia la richiesta ad altre agenzie
Accetto il trattamento dei miei dati



Realizzarecasa one stop agency

Via nazario sauro, 2
42121 Reggio nell'Emilia

3311787812    Riferimenti: Alessandro Tondo

Quattro Castella
Prezzo: € 1.000
1



Descrizione:
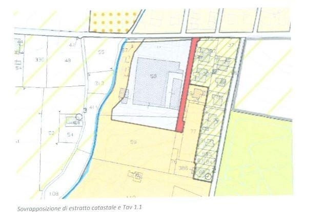
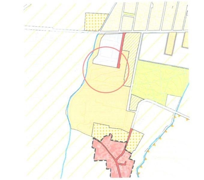
Rif: terreno02 - realizzare casa propone in esclusiva terreno edificabile da urbanizzare a quattro castella terreno edif. Residenziale in vendita - rif. Terreno02.terreno di 10000 di s.f e da 3000/4000 di s.c. Trattativa, si valuta permuta parizale riservata per qualsiasi info contattare giovanni de vietro




Caratteristiche immobile:
Codice inserzione: 1762739661
Rif. Annuncio: 1360185/2030/terreno02
Provincia: Reggio nell'Emilia
Comune: Quattro Castella
Superficie (Mq) : 1 Mq.
Tipo immobile: Terreni

Costi:
Prezzo € 1.000


Efficienza energetica: