Descrizione:
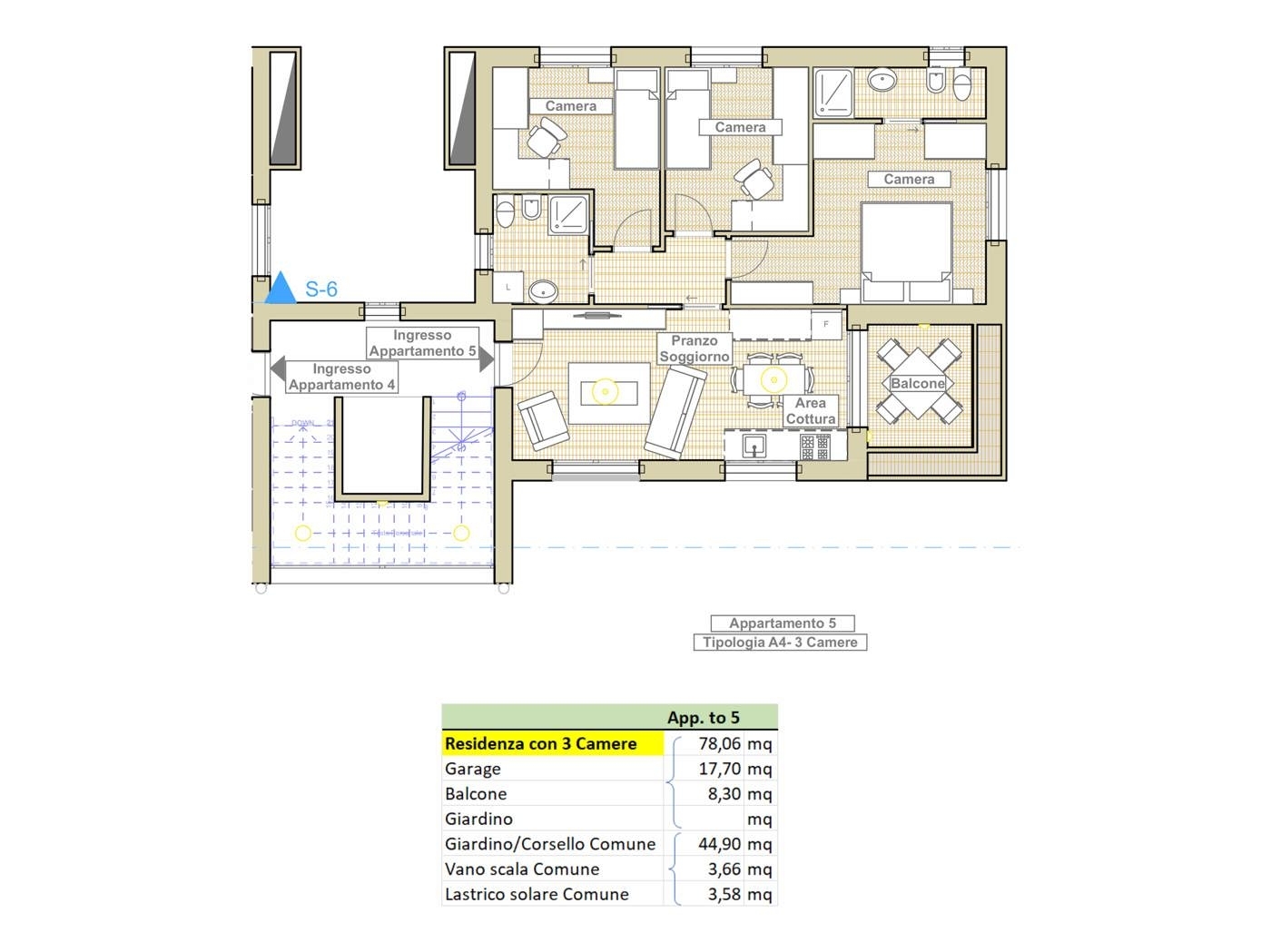
In esclusiva! a cattolica - zona residenzialeriferimento: mi013/a05progettato all'interno della nuova costruzione in via olivieri in classe energetica a4, questo raffinato quadrilocale unisce un layout funzionale e ben distribuito alla luminosità e al comfort di un ambiente moderno e ad alta efficienza.l'appartamento, situato al secondo piano, è composto da zona giorno con cucina a vista e balcone con affaccio sul verde del parco della pace. La zona notte comprende due camere da letto singole, un bagno e una suite padronale con bagno privato.dotazioni tecniche di alto livello:-riscaldamento a pavimento-ventilazione meccanica controllata (vmc)-impianto fotovoltaico connesso-classe energetica a4possibilità di acquistare garage con posto auto riservato.