home page > Annunci immobiliari in Italia > Emilia-Romagna > Rimini > Riccione > appartamenti in vendita > Scheda immobile

Appartamento in vendita a Riccione

COMPILA IL MODULO SOTTOSTANTE PER RICEVERE MAGGIORI INFORMAZIONI







Invia la richiesta ad altre agenzie
Accetto il trattamento dei miei dati



Capodagli re advisory

Corso f.lli cervi, 56
47838 Riccione (RN)

00390541410059

Riccione
Prezzo: € 505.000
2
80



Descrizione:
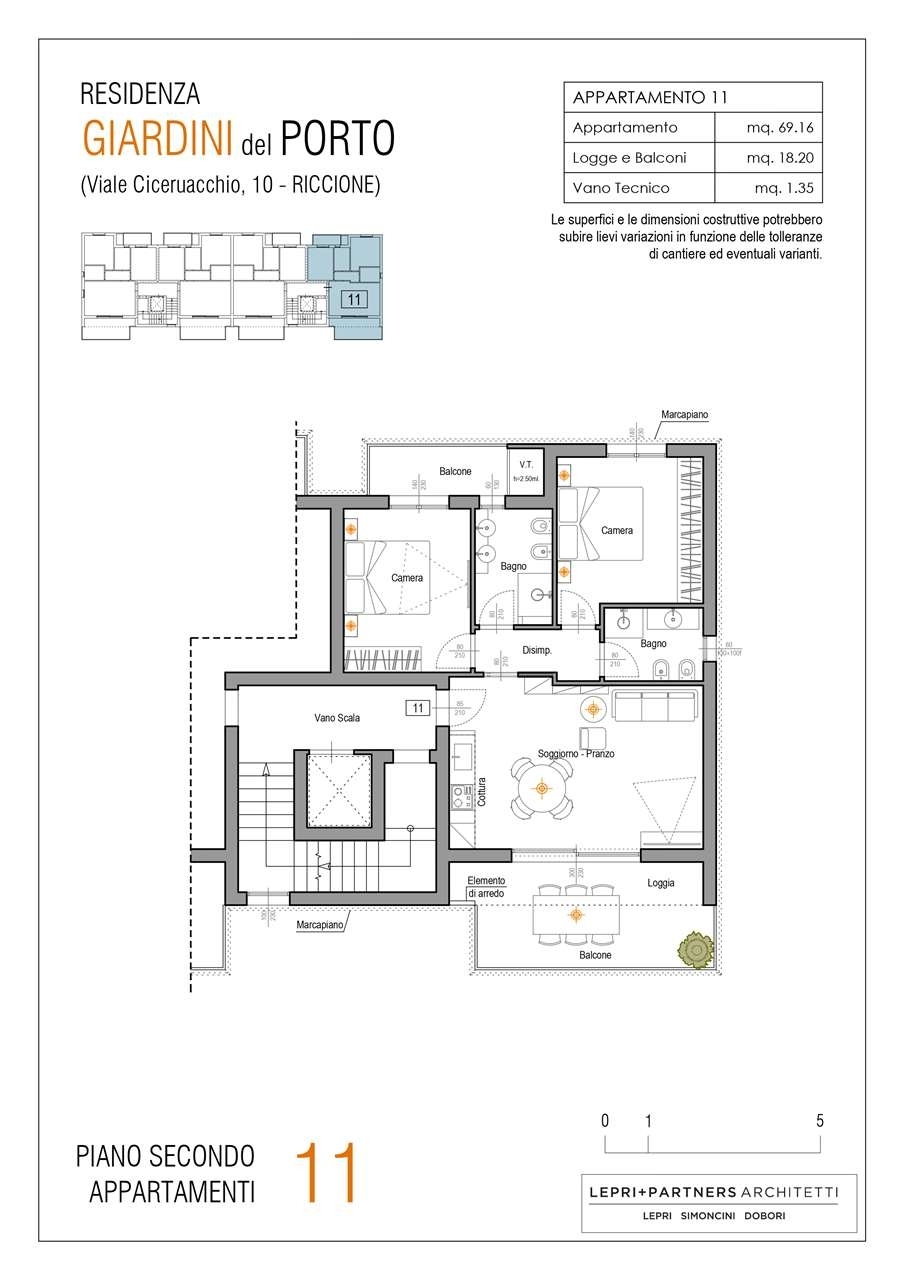
La residenza 'giardini del porto' verrà edificata in zona di grande pregio, in posizione ottimale per raggiungere il mare, a pochi passi da viale ceccarini, dal porto canale, e da viale dante. L'edificio condominiale che sorgerà permetterà di vivere in un contesto abitativo immerso nel verde, adiacente al giardino 'nicola casali', sindaco di riccione negli anni '50, in una zona caratterizzata dalla vicinanza a tutti i principali servizi, dal centro, seppur godendo della posizione appartata e silenziosa. Le unità abitative saranno 13, distribuite su quattro piani fuori terra, tutte con autorimesse o posti auto di proprietà; le residenze al piano terra saranno corredate di giardini in uso esclusivo, quelle ai piani intermedi di balconi abitabili in parte loggiati. I due attici, poi, oltre alle generose dimensioni degli spazi interni, godranno di terrazzi con vista sulle verdeggianti chiome delle alberature circostanti. Le tipologie abitative sono state accuratamente studiate, al fine di soddisfare il desiderio e le necessità di spazi di chi si affaccia all'acquisto di una residenza al mare o come dimora abituale.il capitolato, la cui redazione è in fase di ultimazione, prevede:- progettazione sostenibile improntata all'efficienza energetica;- particolare attenzione all' isolamento termico ed acustico;- gas free;- impianto fotovoltaico dedicato;l' appartamento in oggetto è sito al piano secondo ed è composto da un soggiorno con zona cottura dal quale si accede al terrazzo abitabile parzialmente loggiato, una camera matrimoniale, una camera doppia con balcone privato e due bagni.garage al piano seminterrato e/o posti auto scoperti, acquistabili separatamente.ufficio vendite:capodagli re advisory + riccione immobiliare + classe energetica:




Caratteristiche immobile:
Codice inserzione: 1747005113
Rif. Annuncio: A 359 UI11
Provincia: Rimini
Comune: Riccione
Superficie (Mq) : 80 Mq.
Tipo immobile: Appartamento
Camere: 2

Costi:
Prezzo € 505.000


Efficienza energetica: