home page > Annunci immobiliari in Italia > Emilia-Romagna > Rimini > Riccione > Rustici in vendita > Scheda immobile

Rustici in vendita a Riccione

COMPILA IL MODULO SOTTOSTANTE PER RICEVERE MAGGIORI INFORMAZIONI







Invia la richiesta ad altre agenzie
Accetto il trattamento dei miei dati



Agenzia immobiliare adriacasa di maria cimino

Via catullo, 9c
47838 Riccione (RN)

0541606986    3492775066    Riferimenti: Cimino Maria Gabriella

Riccione
Prezzo: € 3.000.000
G
15
6515
Su più livelli



Descrizione:
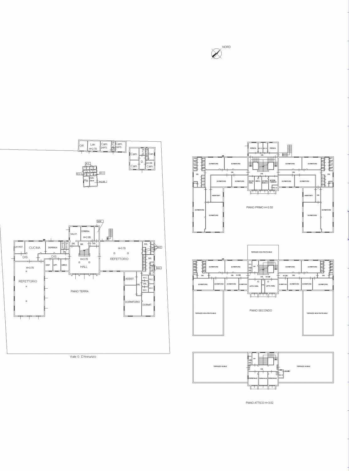
VENDESI DUE STABILI ESCLUSIVI DI GRANDE METRATURA A POCHI PASSI DAL MARE PER REALIZZARE CONDHOTEL- RICCIONE ZONA ALBA NORD - A Riccione, in seconda linea mare e a pochi passi dalla spiaggia, l'agenzia immobiliare Adriacasa di Riccione propone in vendita un'ampia proprietà di circa 6.515 mq, composta da due immobili su lotti distinti di 2.540 mq e 3.975 mq, ma accorpabili, grazie alla possibilità di rimuovere o spostare la strada che li separa, in accordo con il Comune, è possibile creare quindi un'unica struttura con un aumento di cubatura del 20%. Gli edifici, privi di vincoli, possono essere demoliti e ricostruiti, offrendo l'opportunità di realizzare un Condhotel in linea con le normative vigenti. Prezzo richiesto per la vendita in blocco: 3 milioni di euro trattabili. Un investimento esclusivo nel cuore della Riviera Romagnola, perfetto per chi vuole sviluppare un progetto di prestigio. Info e dettagli in Agenzia.

Servizi nei pressi dell'immobile:
Trasporti pubblici, supermercato, bar, ristorante/trattoria, albergo.




Caratteristiche immobile:
Codice inserzione: 1741076896
Rif. Annuncio: TT000
Provincia: Rimini
Comune: Riccione
Superficie (Mq) : 6515 Mq.
Tipo immobile: Rustici
Stato immobile: usato da riattare
Piano: Su più livelli
Camere: 15
Stato al rogito: Libero

Costi:
Prezzo € 3.000.000


Efficienza energetica:
Classe energetica: G
Indice di prestazione energetica (EPgl): 175 kWh/mq annui