home page > Annunci immobiliari in Italia > Emilia-Romagna > Rimini > Santarcangelo di Romagna > Negozi uffici capannoni in affitto > Scheda immobile

Negozi uffici capannoni in affitto a Santarcangelo di Romagna

COMPILA IL MODULO SOTTOSTANTE PER RICEVERE MAGGIORI INFORMAZIONI







Invia la richiesta ad altre agenzie
Accetto il trattamento dei miei dati



Passerini immobiliare

Via mura barriera ponente 13
47521 Cesena (FC)

0547.24743    Riferimenti: Gabriele Passerini

Santarcangelo di Romagna
Prezzo: € 2.000
D
3
250
1



Descrizione:
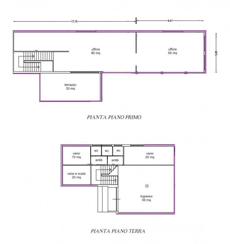
A rimini adiacente santarcangelo, su strada di forte passaggio, affittiamo ufficio commerciale showroom di 250 mq e comodo parcheggio.l'immobile si presenta in ottime condizioni, molto luminoso, con aria condizionata e su 2 livelli:- al piano terra ampio ingresso di stile con vani e servizi per totali 110 mq- al piano primo 2 ampi e luminosi vani su terrazzo per totali 140 mqattualmente accatastato d8 quindi ideale per associazioni o attività commerciali con vendita parziale, modificabile in uso ufficio in base all'esigenza.richiesta 2.000 euro/mese e fideiussione 6 mesiper info roberto sono specializzato in immobili commerciali--- capannoni, uffici, negozi ma anche attività attive o inattive ---chiamatemi direttamente per sottoporvi panoramica di immobili idonei.oppure scrivetemi a le seguenti informazioni:- attività o uso che si intende svolgere- tipologia di immobile- mq necessari di interno specificando quanti uffici e altri vani- mq di esterno se necessari (corte privata o fronte strada di passaggio..)- zona ideale- budget massimo disponibilevi contatterò quanto prima con una panoramica di propostegrazieape d




Caratteristiche immobile:
Codice inserzione: 1769574108
Rif. Annuncio: R417
Provincia: Rimini
Comune: Santarcangelo di Romagna
Superficie (Mq) : 250 Mq.
Tipo immobile: Negozi uffici capannoni
Stato immobile: usato
Piano: 1
Bagni: 3

Costi:
Prezzo € 2.000


Efficienza energetica:
Classe energetica: D
Riscaldamento: autonomo