Descrizione:
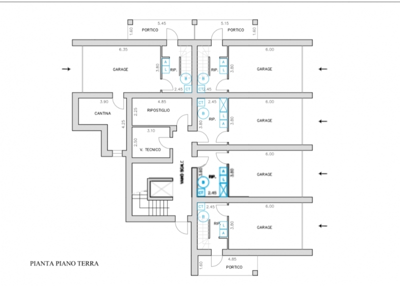
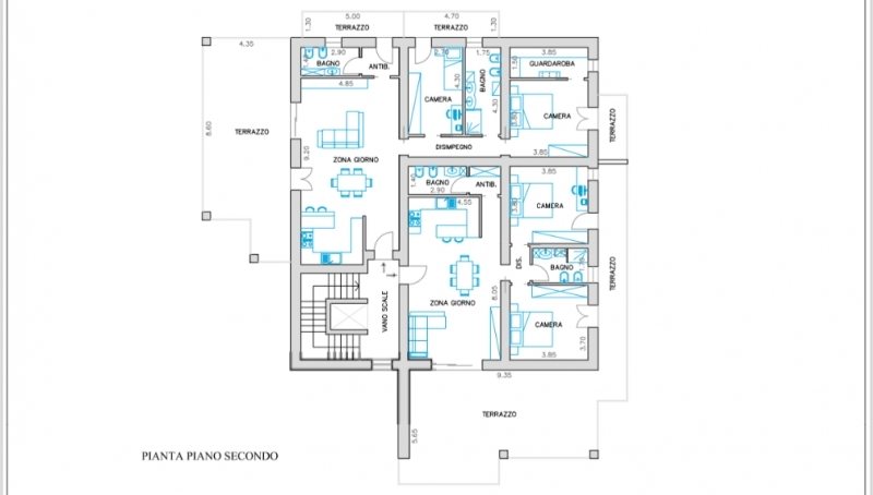
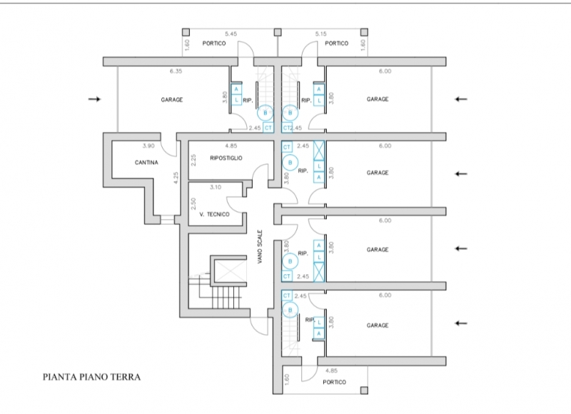
Vendesi appartamenti di nuova costruzione in classe energetica a4, inseriti in elegante palazzina in fase di realizzazione.la palazzina si sviluppa su più livelli e ospita:tre appartamenti al primo piano, di diverse metrature, tutti dotati di ampi terrazzi vivibili e giardino privato al piano terra;due attici, di cui uno ancora disponibile, con splendido terrazzo abitabile.ogni unità è completata da garage singolo o doppio e cantina.gli immobili saranno realizzati con pannelli fotovoltaici e tutte le più moderne tecnologie previste per la classe a4, garantendo massimo comfort abitativo ed elevato risparmio energetico.possibilità di detrazioni fiscali grazie all'intervento di ristrutturazione.posizione strategica, comoda ai servizi e perfettamente collegata alle città di sacile, vittorio veneto e conegliano.