Descrizione:
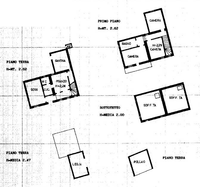
Sei alla ricerca di ampi spazi esterni? sei stanco del traffico ma non vuoi rinunciare ai principali servizi??nel comune di san quirino e pià precisamente a san foca, proponiamo in vendita porzione di testa di abitazione in linea. L'immobile, con spazi esterni autonomi, à edificata su due livelli oltre il sottotetto. al piano terra, in corpi staccati, sono presenti garage, legnaia e pollaio. L'abitazione dispone di pranzo, soggiorno, cucina, wc, cantina e ripostiglio esterno; al piano primo tre camere e bagno oltre ad un terrazzino. la proprietà comprende inoltre circa 3400 mq di terreno destinato a verde privato. un'occasione da cogliere al volo!!