Descrizione:
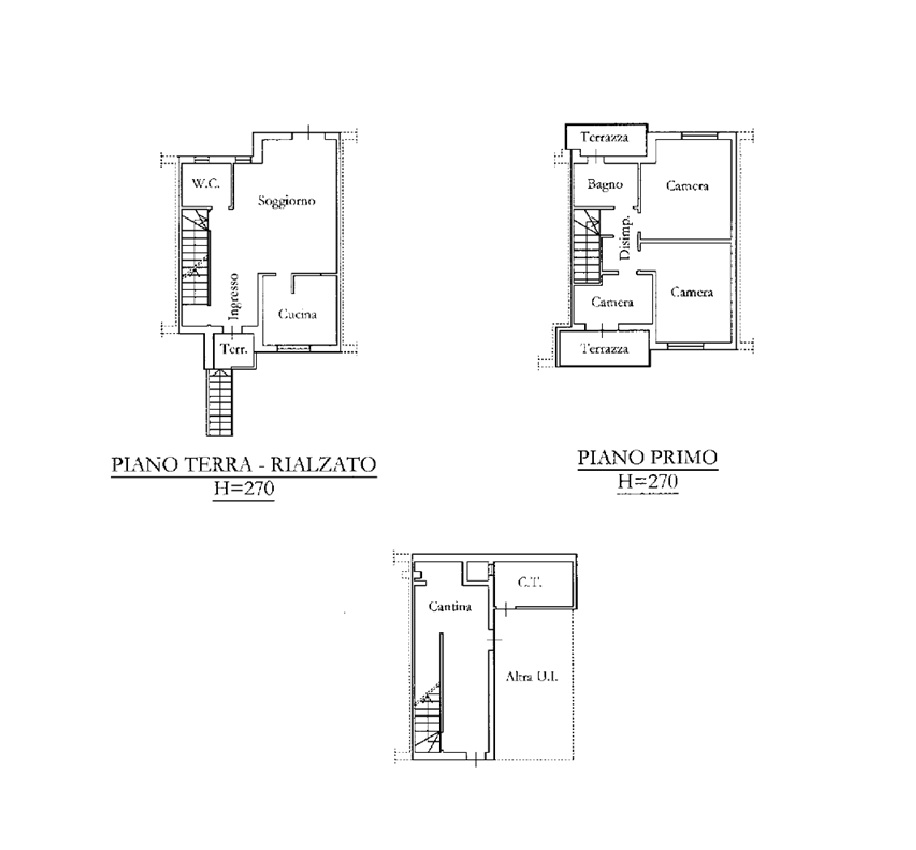
povoletto - in contesto residenziale, luminosa villa a schiera completamente ristrutturata nel 2020 (impianti, infissi, pavimenti, bagni).l’immobile ha una metratura di 150 mq complessivi sviluppati su tre livelli con cucina a vista, soggiorno, due camere matrimoniali, una camera singola, biservizi, graziosa taverna, lavanderia, giardino e garage. L’immobile è dotato anche di una termostufa a pellet e di una stufa a legna ventilata presente in soggiorno.impianto fotovoltaico da 6 kwh, riscaldamento autonomo.ottime condizioni - parziale arredo compreso nel prezzo€ 218.000,00 - classe energetica “c”