04321598035 Riferimenti: Luca Sartori
Descrizione:
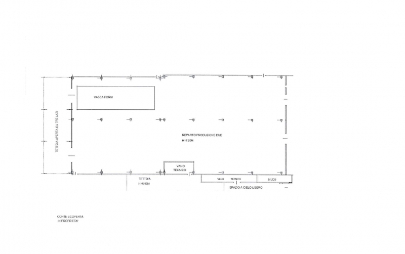
Capannone industriale in vendita a remanzacco, zona industriale b, con destinazione catastale d/7, avente superficie interna di 2600mq e un'ampia area esterna di circa 2000mq completamente recintata, dotata di cancello automatizzato. La struttura presenta un'altezza totale di 7 metri e altezza utile sottotrave di 5,20 metri con prediposizione linee per carroponte già presenti, risultando adatta per attività produttive, industriali e logistiche, inclusa movimentazione mezzi pesanti. Anno di costruzione 1993.l'immobile si trova in eccellenti condizioni generali, è attualmente soggetto a interventi di sistemazione interna e offre la possibilità di personalizzare e riorganizzazione degli spazi e delle aree destinate alla produzione. Tra le dotazioni tecniche principali si evidenziano: impianto di illuminazione led, anello antincendio con certificato cpi per rischio incendio massimo, impianti completamente a norma, copertura in ottimo stato manutentivo e predisposizione per la creazione di uffici anche su due livelli e area attrezzata per la ricarica di muletti elettrici e compressori.l'accesso diretto è garantito da due portoni industriali di grandi dimensioni (4,60mt di larghezza per 4,50mt di altezza), ideali per operazioni di carico e scarico merci su copertura di oltre 400mq. All'esterno si trovano aree di parcheggio interne e ampi spazi di manovra per mezzi industriali e autoarticolati per oltre 2000mq.l'immobile è sottoposto a verifica per l'attestato di prestazione energetica come previsto dal decreto legislativo 192/2005 e dpr 412/93.la disponibilità dell'immobile è immediata, con acquisto diretto da società con applicazione iva a norma di legge o possibilità di reverse charge. Classe energetica = in attesa
| Codice inserzione: | 1765323428 |
| Rif. Annuncio: | 0147_1091792 |
| Provincia: | Udine |
| Comune: | Remanzacco |
| Superficie (Mq) : | 3900 Mq. |
| Tipo immobile: | Negozi uffici capannoni |
| Prezzo | € 500.000 |