home page > Annunci immobiliari in Italia > Friuli-Venezia Giulia > Udine > Tarcento > Negozi uffici capannoni in affitto > Scheda immobile

Negozi uffici capannoni in affitto a Tarcento

COMPILA IL MODULO SOTTOSTANTE PER RICEVERE MAGGIORI INFORMAZIONI







Invia la richiesta ad altre agenzie
Accetto il trattamento dei miei dati



Immobigo srl

Via nazionale
33010 Tavagnacco (UD)

04321598035    Riferimenti: Luca Sartori

Tarcento
Prezzo: € 2.000
D
458



Descrizione:
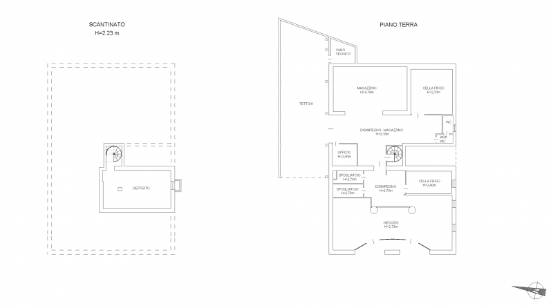
Proponiamo un ampio negozio vetrinato situato in posizione strategica nel cuore di tarcento, direttamente affacciato sulla frequentata piazza del mercato. Il locale dispone di tre grandi vetrine che garantiscono ottima visibilità e luminosità naturale. Attualmente, lo spazio interno è suddiviso in più ambienti tramite pareti in cartongesso, facilmente removibili per consentire una completa personalizzazione degli spazi secondo le proprie esigenze. L'immobile dispone inoltre di un comodo parcheggio privato, con sei posti auto scoperti, per complessivi 90mq. è presente un'ampia tettoia di 116mq a servizio dell'attività commerciale, ideale per operazioni di carico e scarico, supportata da una zona dedicata esclusivamente a queste attività di quasi 100mq.al piano interrato si trova una spaziosa cantina di 64mq. Centrale termica. L'impianto di riscaldamento è autonomo e l'immobile è dotato di un impianto di raffreddamento di tipo industriale già installato. La superficie complessiva del negozio è ideale per attività commerciali, espositive e di vendita al dettaglio che necessitano di grandi spazi funzionali.metrature: negozio con 3 vetrine 354mq, cantina 64mq, tettoia 116mq, zona riservata carico scarico 90mq, posti auto scoperti di proprietà 6 per 90mqclasse energetica: d classe energetica = d




Caratteristiche immobile:
Codice inserzione: 1759876568
Rif. Annuncio: 0086_1084193
Provincia: Udine
Comune: Tarcento
Superficie (Mq) : 458 Mq.
Tipo immobile: Negozi uffici capannoni

Costi:
Prezzo € 2.000


Efficienza energetica:
Classe energetica: D