home page > Annunci immobiliari in Italia > Friuli-Venezia Giulia > Udine > Tavagnacco > Negozi uffici capannoni in vendita > Scheda immobile

Negozi uffici capannoni in vendita a Tavagnacco

COMPILA IL MODULO SOTTOSTANTE PER RICEVERE MAGGIORI INFORMAZIONI







Invia la richiesta ad altre agenzie
Accetto il trattamento dei miei dati



Immobigo srl

Via nazionale
33010 Tavagnacco (UD)

04321598035    Riferimenti: Luca Sartori

Tavagnacco
Prezzo: € 1.250.000
1630



Descrizione:
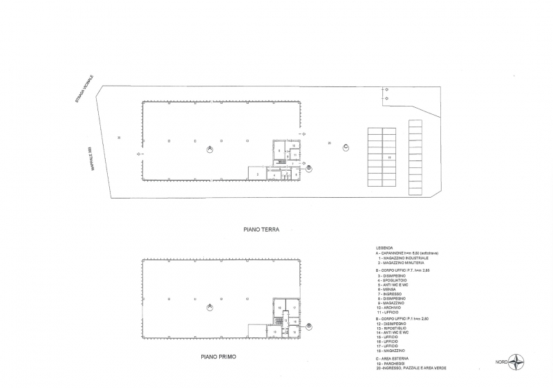
Capannone industriale/artigianale con 3 carroponti da 5t (2 omis e 1 bonfanti), inserito in un lotto di 5.500mq completamente recintato, con ampia area di manovra per la logistica e la movimentazione dei bilici. Il capannone misura 1.630mq ed è dotato di due portoni automatizzati fronte/retro (4,6mq x 4,5mq ). Al suo interno troviamo gli uffici disposti su due livelli, in perfette condizioni: piano terra: uffici, archivio, magazzino, spogliatoi, mensa e servizi. Piano primo: presidenza, due uffici indipendenti, archivio, sala riunioni e servizi.caratteristiche: ottimamente manutenzionato, impianti a norma, accesso per bilici, 3 carroponti da 5 t, uffici climatizzati, sala server, spogliatoi per il personale, allarme volumetrico e perimetrale, videosorveglianza, cancelli automatizzati. Lotto completamente recintato.metrature: capannone 1.630mq; uffici pt 106mq; uffici p1 174mq; 11 posti auto scoperti 154mq; 19 posti auto coperti 266mq, area di manovra 1700mq, lotto recintato 5500mq classe energetica = in attesa




Caratteristiche immobile:
Codice inserzione: 1765323489
Rif. Annuncio: 0175
Provincia: Udine
Comune: Tavagnacco
Superficie (Mq) : 1630 Mq.
Tipo immobile: Negozi uffici capannoni

Costi:
Prezzo € 1.250.000


Efficienza energetica: