home page > Annunci immobiliari in Italia > Friuli-Venezia Giulia > Udine > Udine > Case e ville indipendenti in vendita > Scheda immobile

Case e ville indipendenti in vendita a Udine

COMPILA IL MODULO SOTTOSTANTE PER RICEVERE MAGGIORI INFORMAZIONI







Invia la richiesta ad altre agenzie
Accetto il trattamento dei miei dati



Immobiliare In Udine S.r.l.

P.zza Garibaldi, 5
33100 Udine

+39 0432 502100

Udine
Prezzo: € 690.000
In definizione
4
3
300
Su più livelli
600 Mq



Descrizione:
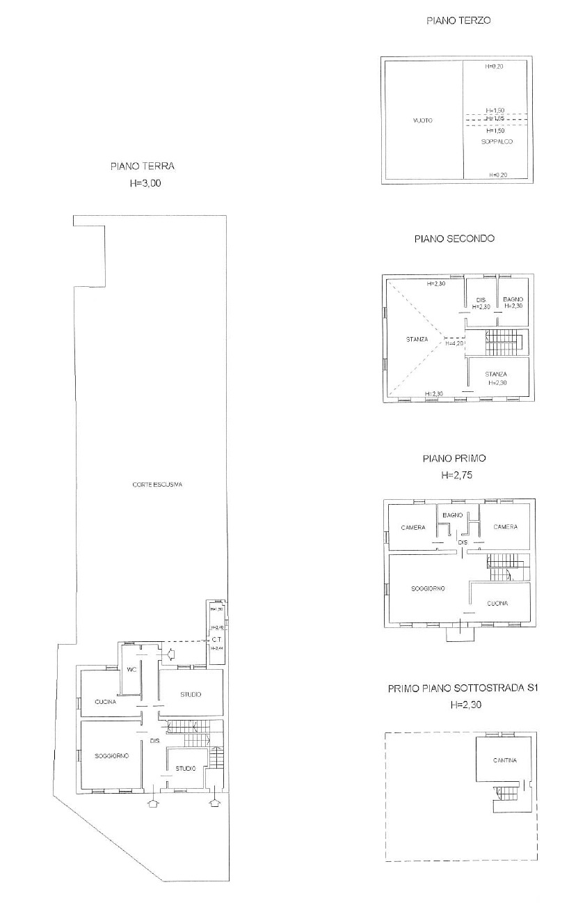
Affacciata sul Parco Moretti, proponiamo in vendita una splendida casa liberty indipendente edificata nei primi anni '20 del '900, ricca di fascino e personalità. Disposta su tre livelli, per un totale di circa mq. 300, offre: al piano terra un’unità con ingresso indipendente, perfetta come studio o appartamento; al primo e secondo piano la residenza principale, luminosa ed accogliente. Il giardino privato regala un angolo verde riservato. Una casa baciata dalla luce, ideale per chi cerca eleganza e indipendenza.




Caratteristiche immobile:
Codice inserzione: 1449069119
Rif. Annuncio: L255
Provincia: Udine
Comune: Udine
Zona: Semicentro  
Superficie (Mq) : 300 Mq.
Tipo immobile: Case e ville indipendenti
Stato immobile: ristrutturato
Anno costruzione/ristrutturazione: 2002
Piano: Su più livelli
Camere: 4
Stato al rogito: Libero
Giardino : 600 Mq.
Tipologia giardino : Privato
Bagni: 3
Terrazze: 1

Costi:
Prezzo € 690.000


Efficienza energetica:
Classe energetica: In fase di definizione
Riscaldamento: autonomo
Tipologia riscaldamento: Metano