home page > Annunci immobiliari in Italia > Friuli-Venezia Giulia > Udine > Udine > Case e ville indipendenti in vendita > Scheda immobile

Case e ville indipendenti in vendita a Udine

COMPILA IL MODULO SOTTOSTANTE PER RICEVERE MAGGIORI INFORMAZIONI







Invia la richiesta ad altre agenzie
Accetto il trattamento dei miei dati



Rehome di pellegri vanessa

Viale del ledra 15
33100 Udine

3486710098    Riferimenti: Vanessa Pellegri

Udine
Prezzo: € 430.000
A4
2
2
130
1
1



Descrizione:
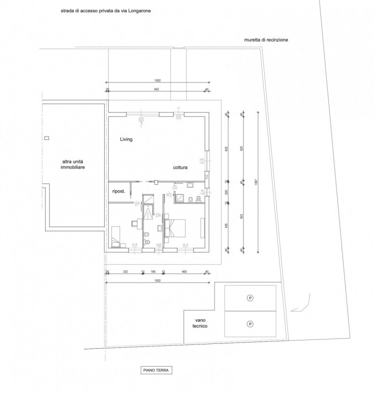
In una delle zone più tranquille e ricercate di udine, precisamente nella baldasseria bassa, proponiamo in vendita un'opportunità unica: una casa bifamiliare attualmente in fase di costruzione. Situata in via longarone, dietro viale palmanova, questa proprietà si presenta al grezzo e offre la possibilità di personalizzare gli spazi interni secondo le proprie preferenze.la casa si sviluppa su un unico piano per garantire comodità e funzionalità. Circondata da un ampio giardino privato su tre lati, rappresenta l'ideale per chi ama godere dell'aria aperta senza rinunciare alla privacy.venduta 'chiavi in mano', la struttura sarà dotata della certificazione casa clima che assicura elevati standard energetici. Tra le caratteristiche distintive troviamo impianto fotovoltaico per ottimizzare i consumi energetici e raffrescamento canalizzato per il massimo comfort durante i mesi estivi. Gli impianti sono all'avanguardia, la qualità costruttiva assicurata del sistema pontarolo.non perdere l'occasione di creare la tua casa dei sogni completamente su misura! contatta subito la nostra agenzia per ulteriori informazioni o per prenotare una visita.l'agenzia rehome di pellegri vanessa si riserva di verificare alcune informazioni qui riportate in quanto tutto il materiale e la documentazione utilizzati sono state fornite da terze persone. Le immagini riportate potrebbero essere di repertorio o modificate per esplicita richiesta di privacy della proprietà.




Caratteristiche immobile:
Codice inserzione: 1761187936
Rif. Annuncio: RH383
Provincia: Udine
Comune: Udine
Zona: Baldasseria Bassa  
Superficie (Mq) : 130 Mq.
Tipo immobile: Case e ville indipendenti
Anno costruzione/ristrutturazione: 2025
Piano: 1
Camere: 2
Posti auto scoperti: 1 posto auto
Bagni: 2

Costi:
Prezzo € 430.000


Efficienza energetica:
Classe energetica: A4
Indice di prestazione energetica (EPgl): 1 kWh/mq annui
Riscaldamento: autonomo a pavimento