home page > Annunci immobiliari in Italia > Friuli-Venezia Giulia > Udine > Udine > Negozi uffici capannoni in affitto > Scheda immobile

Negozi uffici capannoni in affitto a Udine

COMPILA IL MODULO SOTTOSTANTE PER RICEVERE MAGGIORI INFORMAZIONI







Invia la richiesta ad altre agenzie
Accetto il trattamento dei miei dati



Immobigo srl

Via nazionale
33010 Tavagnacco (UD)

04321598035    Riferimenti: Luca Sartori

Udine
Prezzo: € 850
E
60



Descrizione:
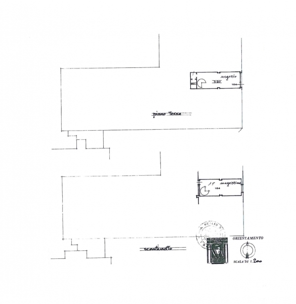
Ufficio vetrinato in chiavris di 60mq su due livelli. Al piano interrato, accesso indipendente con possibilità di carico e scarico merci.l'ufficio è stato ristrutturato completamente nel 2008 e manutenzionato in maniera impeccabile. Riscaldamento autonomo con condizionamento già installato. Spese condominiali euro 15mese.caratteristiche: manutenzione perfetta, riscaldamento autonomo, condizionamento, basse spese di gestione, impianto di sorveglianza con videocameremetrature: pt fronte strada 33mq, p int 28mqclasse energetica: econtratto di locazione 6+6 ( no iva da privato ) classe energetica = e




Caratteristiche immobile:
Codice inserzione: 1762731483
Rif. Annuncio: 0124_1088633
Provincia: Udine
Comune: Udine
Superficie (Mq) : 60 Mq.
Tipo immobile: Negozi uffici capannoni

Costi:
Prezzo € 850


Efficienza energetica:
Classe energetica: E