home page > Annunci immobiliari in Italia > Friuli-Venezia Giulia > Udine > Udine > Negozi uffici capannoni in affitto > Scheda immobile

Negozi uffici capannoni in affitto a Udine

COMPILA IL MODULO SOTTOSTANTE PER RICEVERE MAGGIORI INFORMAZIONI







Invia la richiesta ad altre agenzie
Accetto il trattamento dei miei dati



Immobigo srl

Via nazionale
33010 Tavagnacco (UD)

04321598035    Riferimenti: Luca Sartori

Udine
Prezzo: € 2.500
E
350



Descrizione:
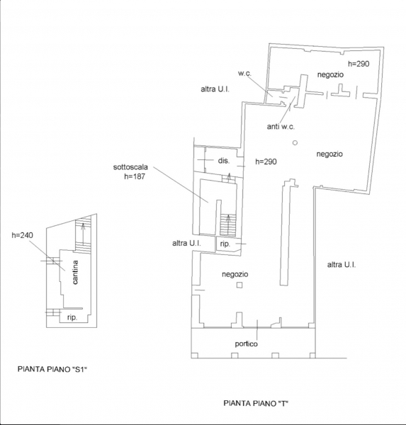
Locale commerciale nei pressi del duomo di udine. Si propone in locazione locale commerciale di circa 350mq con fronte vetrinato con tre grandi vetrine. Attualmente l'immobile è al grezzo avanzato ed è possibile personalizzarlo in base alle proprie necessità. Spese condominiali euro 50/mese. Il locale è usufruibile da subito.metrature: piano terra 340mq, cantina 10mq. Altezza interna 2,90m.certificazione energetica classe e.ulteriori informazioni presso i nostri uffici. Classe energetica = e




Caratteristiche immobile:
Codice inserzione: 1772667361
Rif. Annuncio: 2707
Provincia: Udine
Comune: Udine
Superficie (Mq) : 350 Mq.
Tipo immobile: Negozi uffici capannoni

Costi:
Prezzo € 2.500


Efficienza energetica:
Classe energetica: E