0776825049 0776825049 3397078619 Riferimenti: Gianni Bruni - Bruni
Descrizione:
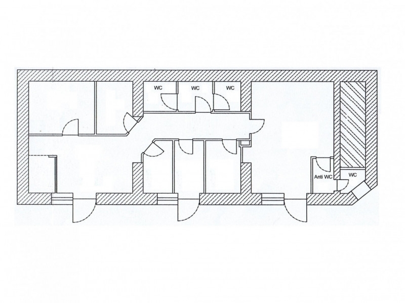
U25 - locale uso studio/commerciale a piano terra, ottimamente rifinito, di mq. 120, fornito di autorizzazioni/certificazioni (autorizzazione sanitaria, certificato di agibilità), fornito di climatizzazione, impianto antifurto.già pronto per l'uso di attività medico/sanitaria.possibilità di diversa ripartizione degli spazi rispetto allo stato attuale.n. 3 ingressi indipendenti.parcheggio esclusivo di mq. 270, con ingresso automatizzato.
| Codice inserzione: | 1772163154 |
| Rif. Annuncio: | U25 |
| Provincia: | Frosinone |
| Comune: | Isola del Liri |
| Superficie (Mq) : | 120 Mq. |
| Tipo immobile: | Negozi uffici capannoni |
| Piano: | Piano terra |
| Camere: | 7 |
| Bagni: | 4 |
| Prezzo | € 1.500 |
| Riscaldamento: | autonomo |