0776825049 0776825049 3397078619 Riferimenti: Gianni Bruni - Bruni
Descrizione:
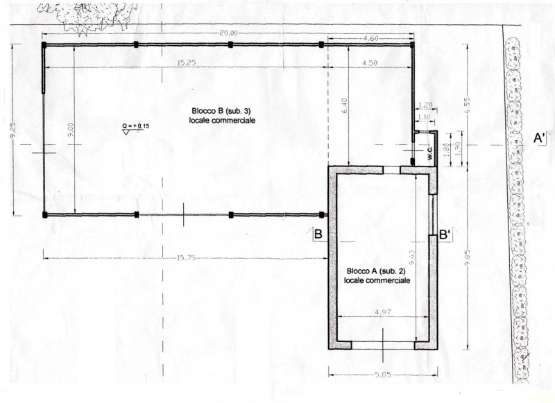
Rif. C04 - capannone commerciale di complessivi mq 213 suddivisi in due ambienti con ufficio e servizio. doppio accesso carrabile al capannone (vedi planimetria).area esterna recintata di mq 780.ideale sia per vendita al minuto che all'ingrosso.possibilità di frazionamento.c.e.: in via di definizione
| Codice inserzione: | 1764561142 |
| Rif. Annuncio: | C04 |
| Provincia: | Frosinone |
| Comune: | Sora |
| Superficie (Mq) : | 213 Mq. |
| Tipo immobile: | Negozi uffici capannoni |
| Prezzo | € 1.000 |