home page > Annunci immobiliari in Italia > Liguria > Imperia > Riva Ligure > Case e ville indipendenti in vendita > Scheda immobile

Case e ville indipendenti in vendita a Riva Ligure

COMPILA IL MODULO SOTTOSTANTE PER RICEVERE MAGGIORI INFORMAZIONI







Invia la richiesta ad altre agenzie
Accetto il trattamento dei miei dati



Agenzia diamante di pavone & c. S.n.c

Via g. Marsaglia 47
18038 Sanremo (IM)

0184.840251    3467353499    Riferimenti: Agenzia Diamante di Pavone & C snc.

Riva Ligure
Prezzo: € 1.200.000



Descrizione:
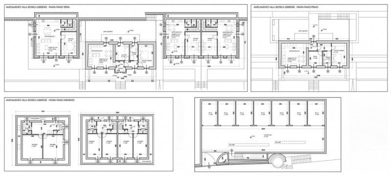
Riva ligure (im), vendesi terreno fronte mare con progetto di ampliamento di villa storica esistente e costruzione di altre due ville, in posizione unica, fronte mare, adiacente alla pista ciclabile, a pochi minuti dal centro e da arma di taggia (im). vendesi terrenocon progetto di ampliamento di villa storica esistente di 370 mq. Oltre 175 mq. Di interrato completamente da ristrutturare e suddividere in cinque appartamenti oltre alla costruzione di autorimessa di 317 mq. Con sette boxes auto, giardini privati di 752 mq. Giardino condominiale di 945 metri quadrati; ulteriore possibilità di edificare una villa residenziale di 56 mq. Oltre 56 mq. Di interrato, giardino di 1183 mq. Con due posti auto e altra casa rurale di 140 mq. Oltre 134 mq. Di interrato compreso box auto, giardino di 890 metri quadrati con due posti auto, ampia vista mare riva ligure (im), seafront land for sale with expansion project of existing historic villa and construction of two other villas, in a unique position, facing the sea, adjacent to the cycle path, a few minutes from the center and from arma di taggia (im), land for sale with expansion project of an existing historic villa of 370 square meters over 175 square meters of basement completely to be restored and divided into five apartments in addition to the construction of a garage of 317 square meters with seven garages, private gardens of 752 square meters, shared garden of 945 square meters; further possibility of building a residential villa of 56 square meters over 56 square meters of basement, garden of 1183 square meters with two parking spaces and another rural house of 140 square meters over 134 square meters of basement including garage, garden of 890 square meters with two parking spaces, wide sea view.




Caratteristiche immobile:
Codice inserzione: 1767327010
Rif. Annuncio: v 189
Provincia: Imperia
Comune: Riva Ligure
Tipo immobile: Case e ville indipendenti

Costi:
Prezzo € 1.200.000


Efficienza energetica: