home page > Annunci immobiliari in Italia > Liguria > La Spezia > Ortonovo > Case e ville a schiera in vendita > Scheda immobile

Case e ville a schiera in vendita a Ortonovo

COMPILA IL MODULO SOTTOSTANTE PER RICEVERE MAGGIORI INFORMAZIONI







Invia la richiesta ad altre agenzie
Accetto il trattamento dei miei dati



Casanova immobiliare

Via campo d'appio, /b 33
54033 Carrara (MS)

058551545    Riferimenti: Davide Bianchi

Ortonovo
Prezzo: € 215.000
3
2
110
Piano terra
2



Descrizione:
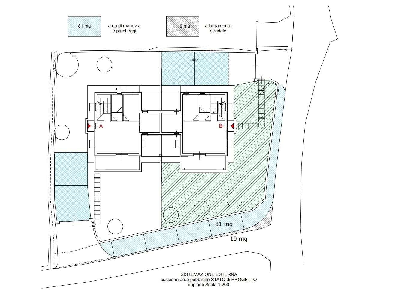
Rif: rif. 4979 isola - lunicasa semindipendente in vendita - 5 vani - 110 mq - con ingresso indipendente - posto al piano piano terracomposto da 3 camere e 2 bagni luni in piano, in zona verdeggiante, tranquilla e residenziale vendiamo una porzione di bifamiliare in fase di prossima realizzazione. la casa è praticamente indipendente ( collegata al fianco solamente da una piccola parete laterale ) con giardino privato e posti auto interni e viene venduta al grezzo ( per grezzo si intende struttura aperta con pilastri in cemento armato e tetto ). in foto si possono visionare le planimetrie di una ipotetica divisione interna ma il cliente acquirente avrà la facoltà di apportare delle modifiche a seconda delle proprie necessità abitative con la possibilità di personalizzare qualsiasi finitura interna. Per info e visite sul posto non esitate a contattarci. classe energetica: in attesa di certificazione -




Caratteristiche immobile:
Codice inserzione: 1717462742
Rif. Annuncio: 1270539/1579/4979
Provincia: La Spezia
Comune: Ortonovo
Zona: Isola  
Superficie (Mq) : 110 Mq.
Tipo immobile: Case e ville a schiera
Stato immobile: nuovo
Anno costruzione/ristrutturazione: 2024
Piano: Piano terra
Camere: 3
Posti auto scoperti: 2 posti auto
Bagni: 2

Costi:
Prezzo € 215.000


Efficienza energetica: