home page > Annunci immobiliari in Italia > Liguria > Savona > Alassio > Attività commerciali in vendita > Scheda immobile

Attività commerciali in vendita a Alassio

COMPILA IL MODULO SOTTOSTANTE PER RICEVERE MAGGIORI INFORMAZIONI







Invia la richiesta ad altre agenzie
Accetto il trattamento dei miei dati



Alassio

Piazza sant'ambrogio 16
17021 Alassio (SV)

0182.64.70.47

Alassio
Prezzo: € 280.000
1
55



Descrizione:
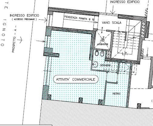
Proponiamo ampio locale commerciale, con bagno e ripostiglio/retro. Il locale si trova al piano terra di una palazzina completamente ristrutturata. Ci troviamo in centro alassio, in zona di frequente passaggio, a soli 150 m dal mare. Non adatto ad attività che necessitano di canna fumaria.




Caratteristiche immobile:
Codice inserzione: 1776832465
Rif. Annuncio: 1457
Provincia: Savona
Comune: Alassio
Superficie (Mq) : 55 Mq.
Tipo immobile: Attività commerciali
Stato al rogito: Libero
Bagni: 1

Costi:
Prezzo € 280.000


Efficienza energetica: