home page > Annunci immobiliari in Italia > Liguria > Savona > Cairo Montenotte > Negozi uffici capannoni in vendita > Scheda immobile

Negozi uffici capannoni in vendita a Cairo Montenotte

COMPILA IL MODULO SOTTOSTANTE PER RICEVERE MAGGIORI INFORMAZIONI







Invia la richiesta ad altre agenzie
Accetto il trattamento dei miei dati



Agor? immobiliare

Via della valle, 7
17014 Cairo Montenotte (SV)

019500033    0199490101    3391294101    Riferimenti: Aghito Fabrizio

Cairo Montenotte
Prezzo: € 48.000
G
98



Descrizione:
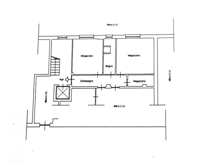
In zona centrale, con passaggio sia pedonale che veicolare, vicino a scuole, ospedale e supermercati, a due passi dal centro storico, locale in buone condizioni con due ampie e luminose vetrine, con annesso locale magazzino retrostante e comunicante internamente, composto da due ampi vani, bagno e ripostiglio. Adatto a studio, negozio, ufficio o magazzino.classe energetica: g




Caratteristiche immobile:
Codice inserzione: 1771891856
Rif. Annuncio: V001000
Provincia: Savona
Comune: Cairo Montenotte
Superficie (Mq) : 98 Mq.
Tipo immobile: Negozi uffici capannoni

Costi:
Prezzo € 48.000


Efficienza energetica:
Classe energetica: G