home page > Annunci immobiliari in Italia > Liguria > Savona > Finale Ligure > Case e ville indipendenti in vendita > Scheda immobile

Case e ville indipendenti in vendita a Finale Ligure

COMPILA IL MODULO SOTTOSTANTE PER RICEVERE MAGGIORI INFORMAZIONI







Invia la richiesta ad altre agenzie
Accetto il trattamento dei miei dati



Citterio immobiliare

Vico cosmelli 1, 4
17024 Finale Ligure (SV)

019747017    3332130179    Riferimenti: AMORE IGNAZIO

Finale Ligure
Prezzo: info in agenzia
2
60



Descrizione:
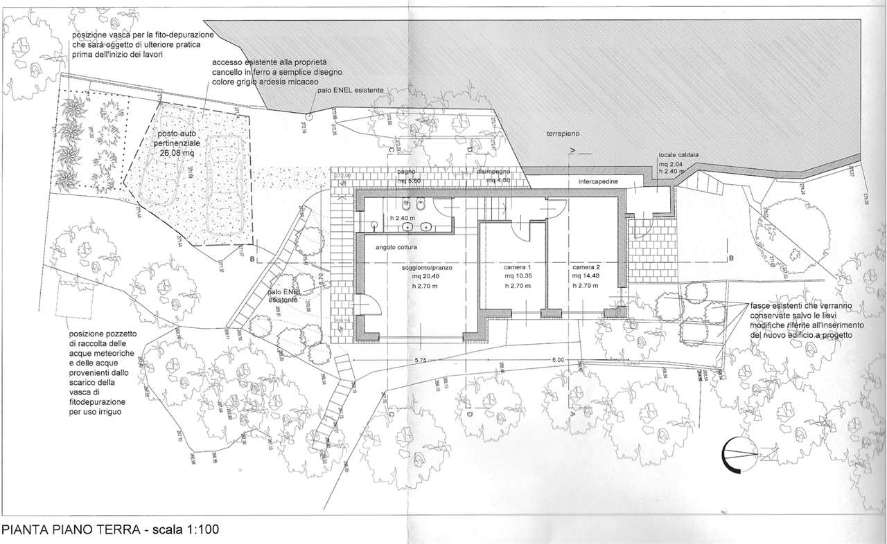
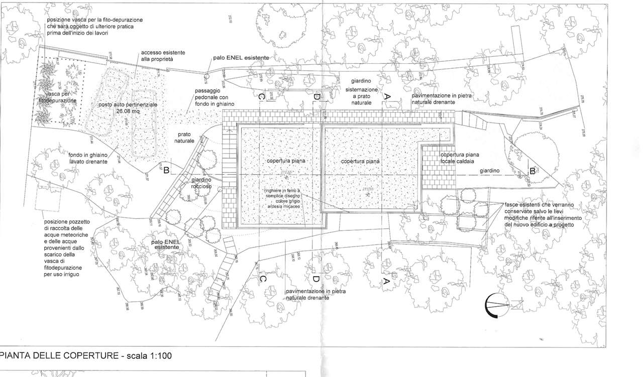
Finale ligure loc. Manie rustico da demolire e ricostruire con progetto approvato per la realizzazione di un trilocale di circa 60mq composto da soggiorno con angolo cottura 2 camere bagno giardino circostante mq 2000 circa l'immobile è servito da strada carrabile vista mare paniramicaclasse energetica: in fase di valutazione




Caratteristiche immobile:
Codice inserzione: 1761523878
Rif. Annuncio: 1359
Provincia: Savona
Comune: Finale Ligure
Superficie (Mq) : 60 Mq.
Tipo immobile: Case e ville indipendenti
Camere: 2

Costi:
Prezzo info in agenzia


Efficienza energetica: