Descrizione:
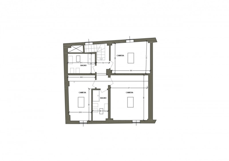
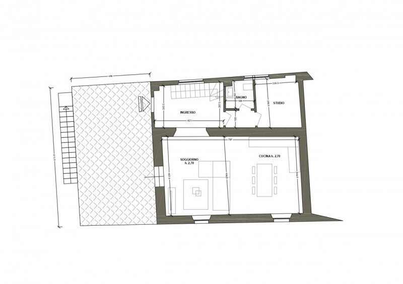
In zona centrale, proponiamo immobile con progetto approvato per la realizzazione di due unità abitative (vedi sezione planimetrie).le demolizioni interne sono già state eseguite, consentendo un avvio rapido dei lavori.attualmente la proprietà è composta da due corpi di fabbrica:* primo edificio, disposto su 3 livelli, destinato alla realizzazione di: * un appartamento al piano terra (bilocale o trilocale di circa 70 mq); * un'unità su due livelli composta da: * piano primo: ingresso dal terrazzo di 36 mq, ampio soggiorno con cucina a vista o separata, bagno e lavanderia; * piano mansardato abitabile: diverse possibilità distributive, tra cui: * 3 camere matrimoniali e 1 bagno; * 2 camere matrimoniali, 1 camera singola e 2 bagni; * suite matrimoniale con bagno privato e cabina armadio, oltre a seconda camera e bagno.* secondo edificio, disposto su 2 livelli, destinato a: * posti auto coperti e cantine, con possibilità di: * più posti auto coperti con cantina; * oppure 1 posto auto coperto e 2 cantine.l'immobile viene venduto allo stato attuale, ideale per imprese o investitori.disponibilità immediata.
prezzo: € 90.000per info e visite contattare we are town real estate | milano | per ulteriori informazioni contattare we are town real estate. we are town è l'advisor immobiliare indipendente formato da un team di 25 professionisti dedicato al real estate. marketing, comunicazione, design e architettura si fondano con l'esperienza ultra ventennale del management in campo immobiliare. agency - communication - capital market