home page > Annunci immobiliari in Italia > Lombardia > Bergamo > Cologno al Serio > appartamenti in vendita > Scheda immobile

Appartamento in vendita a Cologno al Serio

COMPILA IL MODULO SOTTOSTANTE PER RICEVERE MAGGIORI INFORMAZIONI







Invia la richiesta ad altre agenzie
Accetto il trattamento dei miei dati



Consulenze casa

Via s.f. Neri
24059 Urgnano (BG)

34789.15.337    3478915337    Riferimenti: Roberto Radici

Cologno al Serio
Prezzo: € 325.000
3
100



Descrizione:
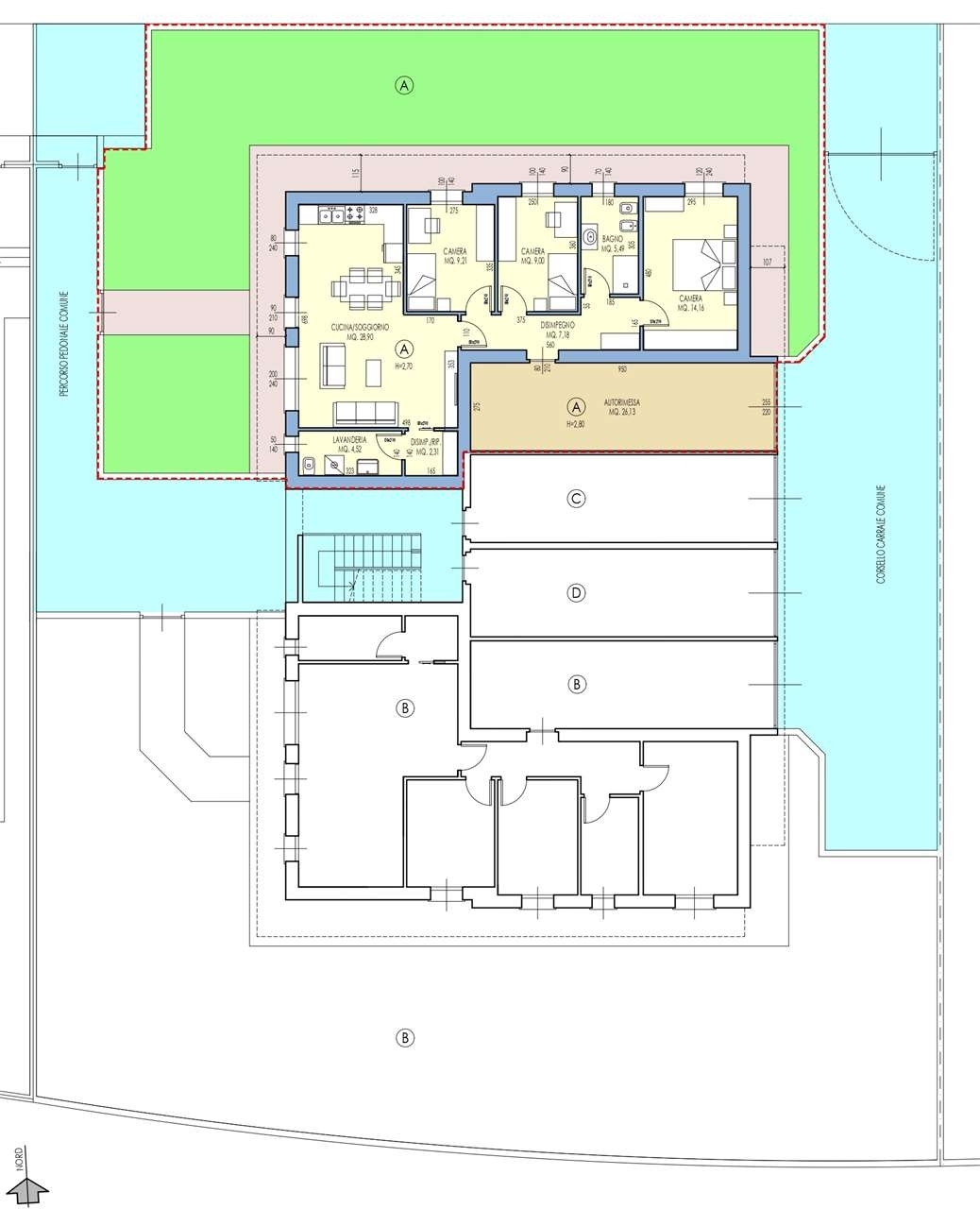
In nuova zona residenziale, ariosa e riservata, in piccola palazzina di sole 4 unità abitative, si propongono 2 nuovi appartamenti quadrilocali posti al piano terra con grandi giardini di proprietà esclusiva.finiture di pregio e criteri costruttivi per arrivare alla certificazione energetica in classe a grazie anche alle coibentazioni previste con cappotto 14cm, serramenti in massa bianca pvc a basso emissivo triplo vetro con gas argon, impianto di riscaldamento a pavimento con pompa di calore per gestire anche il raffrescamento utilizzando lo stesso motore collegato a split idronici (predisposizione), impianto fotovoltaico con ben 6kw installati (no metano).inoltre, tapparelle in alluminio coibentate e motorizzate, sezionale box motorizzata. Predisposizione per impianto antiintrusione, sanitari sospesi, etc.inizio lavori dicembre 2025 e consegna prevista per fine ottobre/novembre 2026.possibilità di personalizzazione delle finiture interne e di gestire soluzione ampio trilocale al posto che quadrilocale (vedi planimetrie in annuncio).appartamento a: 100mq abitativi oltre box doppio da 30mq e giardino esclusivo da 176mq, tipologia quadrilocale con 3 camera da letto, ampio soggiorno con cucina a vista, 2 bagni, posto auto esclusivo, prezzo 325.000€ (145mq comm. Tot. Parz.).appartamento b con stesse metrature ma con giardino pari a 306mq, sempre box doppio e posto auto esclusivo, prezzo 345.000€ (160mq comm. Tot. Parz.).classe energetica:




Caratteristiche immobile:
Codice inserzione: 1773360681
Rif. Annuncio: V001329
Provincia: Bergamo
Comune: Cologno al Serio
Superficie (Mq) : 100 Mq.
Tipo immobile: Appartamento
Camere: 3

Costi:
Prezzo € 325.000


Efficienza energetica: