home page > Annunci immobiliari in Italia > Lombardia > Brescia > Calvisano > appartamenti in vendita > Scheda immobile

Appartamento in vendita a Calvisano

COMPILA IL MODULO SOTTOSTANTE PER RICEVERE MAGGIORI INFORMAZIONI







Invia la richiesta ad altre agenzie
Accetto il trattamento dei miei dati



Vendicase di cuomo coppola massimiliano

Largo della repubblica 10/a
25012 Calvisano (BS)

030968100    Riferimenti: Massimiliano

Calvisano
Prezzo: € 230.000
2
1
124
1



Descrizione:
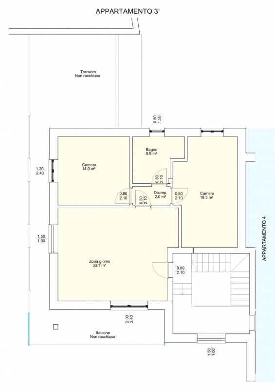
In zona residenziale di recente insediamento proponiamo, in complesso di sole quattro unità abitative, appartamento trilocale con ottime finiture al piano primo di nuovissima costruzione di circa 90 mq composto da soggiorno e cucina a vista con accesso ad un ampio balcone/terrazzo, due camere di ampie metrature ed un bagno. Completa l'immobile il garage e la cantina al piano terra. Realizzato secondo un design innovativo e dotato delle più avanzate tecnologie energetiche ed architettoniche, l'immobile è caratterizzato da impianti di ultima generazione per consentire il massimo confort e risparmio energetico. Possibilità di mutuo. Siamo reperibili anche su whatsapp al numero il nostro ufficio è in grado di offrire attraverso personale qualificato, un'accurata attività di intermediazione e di consulenza inerente la compravendita e la locazione. di seguito vogliamo elencarti alcuni dei servizi offerti dalla nostra agenzia: - valutazione gratuita del tuo immobile grazie alla conoscenza capillare della zona e dell'andamento del mercato; - assistenza in tutte le fasi della compravendita sino al rogito notarile; - promozione e pubblicità del tuo immobile, sul nostro sito e su numerosi portali immobiliari con foto, descrizioni e dettagli esaustivi; - consulenze finanziarie per l'ottenimento del mutuo; - disponibilità di numerosi acquirenti presenti nella nostra banca dati; attenzione: nessun compenso è dovuto all'agenzia per la valutazione dell'immobile, per la visita dell'immobile ed in caso di mancata conclusione dell'affare! per maggiori informazioni contattateci al numero fissa subito il tuo appuntamento: clicca il seguente link https://vendicase.appointlet.com




Caratteristiche immobile:
Codice inserzione: 1770609518
Rif. Annuncio: 118-3
Provincia: Brescia
Comune: Calvisano
Superficie (Mq) : 124 Mq.
Tipo immobile: Appartamento
Stato immobile: nuovo
Anno costruzione/ristrutturazione: 2023
Piano: 1
Camere: 2
Garage: Singolo
Bagni: 1
Terrazze: 1

Costi:
Prezzo € 230.000


Efficienza energetica:
Riscaldamento: autonomo a pavimento