home page > Annunci immobiliari in Italia > Lombardia > Brescia > Castelcovati > Case e ville indipendenti in vendita > Scheda immobile

Case e ville indipendenti in vendita a Castelcovati

COMPILA IL MODULO SOTTOSTANTE PER RICEVERE MAGGIORI INFORMAZIONI







Invia la richiesta ad altre agenzie
Accetto il trattamento dei miei dati



Rovato

Via castello 11
25038 Rovato (BS)

0305788276

Castelcovati
Prezzo: € 150.000
2
2
80



Descrizione:
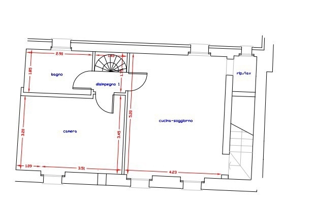
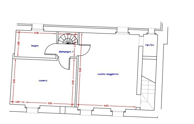
Castelcovati: nel pieno centro di castelcovati, proponiamo in vendita appartamento in duplex di nuova realizzazione. La soluzione si dispone su due livelli abitativi e al piano primo presenta una zona living con cucina a vista, un disimpegno centrale, un bagno dotato di sanitari sospesi e piatto doccia ed una camera matrimoniale. Accediamo al secondo livello dell'immobile tramite scala interna e troviamo uno splendido soppalco sfruttabile come ulteriore camera o come studio in base alle proprie esigenze. le finiture interne dell'appartamento potranno essere scelte in base al proprio gusto prendendo spunto dal capitolato fornito e i serramenti saranno di ultima generazione in pvc. riscaldamento autonomo e disposto a pavimento. cappotto esterno.alta efficienza energetica.completa l'immobile area esclusiva posto al piano terra. visite disponibili anche sul posto




Caratteristiche immobile:
Codice inserzione: 1763080855
Rif. Annuncio: Cod. rif 3271713VRG
Provincia: Brescia
Comune: Castelcovati
Superficie (Mq) : 80 Mq.
Tipo immobile: Case e ville indipendenti
Stato immobile: nuovo
Camere: 2
Bagni: 2

Costi:
Prezzo € 150.000


Efficienza energetica:
Riscaldamento: autonomo