home page > Annunci immobiliari in Italia > Lombardia > Brescia > Desenzano del Garda > Case e ville indipendenti in vendita > Scheda immobile

Case e ville indipendenti in vendita a Desenzano del Garda

COMPILA IL MODULO SOTTOSTANTE PER RICEVERE MAGGIORI INFORMAZIONI







Invia la richiesta ad altre agenzie
Accetto il trattamento dei miei dati



Gardaffare sirmione

Via brescia, 9
25019 Sirmione (BS)

0309905461    Riferimenti: Massimo Beltrami

Desenzano del Garda
Prezzo: € 1.790.000
A2
4
3
390
Piano terra
500 Mq



Descrizione:
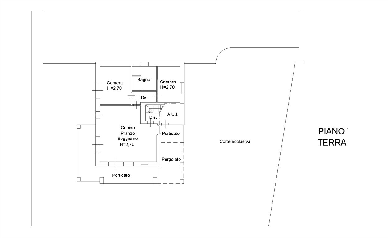
Desenzano del gardain una delle aree residenziali più esclusive di rivoltella, proponiamo in esclusiva una splendida villa singola di recente costruzione, distribuita su tre livelli, con ampio giardino privato e grande autorimessa.attualmente la proprietà è suddivisa in due unità abitative indipendenti, ma con la possibilità, in modo semplice e immediato, di riconfigurarla in un'unica prestigiosa abitazione.distribuzione degli spazi:- piano terra: luminoso soggiorno con cucina a vista e accesso al portico, disimpegno, camera matrimoniale, seconda camera e bagno finestrato.- piano seminterrato: collegato internamente tramite scala, dotato di un secondo bagno con lavanderia, seconda cucina con ampia zona pranzo e ingresso indipendente dall'esterno. Ambiente molto luminoso grazie alla presenza di finestre fuori terra.- piano primo: unità trilocale con bagno e balcone.- pertinenze e dotazioni: nel piano seminterrato trovano spazio una tripla autorimessa, locale tecnico e grande cantina, tutti collegati internamente.il giardino privato di circa 500 m circonda la villa, completato da un portico su tre lati e numerosi posti auto esterni. Possibilità di realizzare ulteriormente al acquisto una piscina privata. caratteristiche tecniche:riscaldamento e raffrescamento autonomi per ogni livelloimpianti di ultima generazione viessmannaddolcitoreimpianto fotovoltaicosistema d'allarmeventilazione meccanica controllatal'arredamento non è incluso nel prezzo, ma può essere acquistato separatamente.richiesta: € 1.790.000 trattabili.classe energetica: a2. gardaffare tel rif. 26-03.




Caratteristiche immobile:
Codice inserzione: 1770613442
Rif. Annuncio: 26-03
Provincia: Brescia
Comune: Desenzano del Garda
Superficie (Mq) : 390 Mq.
Tipo immobile: Case e ville indipendenti
Stato immobile: nuovo
Anno costruzione/ristrutturazione: 2019
Piano: Piano terra
Camere: 4
Stato al rogito: Occupato
Garage: Triplo
Giardino : 500 Mq.
Tipologia giardino : Privato
Bagni: 3

Costi:
Prezzo € 1.790.000
Spese condominiali: € 0


Efficienza energetica:
Classe energetica: A2
Riscaldamento: autonomo
Tipologia riscaldamento: energia elettrica