Descrizione:
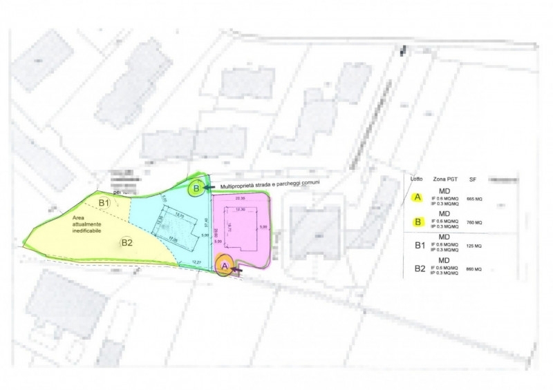
A montichiari, nella tranquilla e ben servita zona di rò/san bernardino, proponiamo in esclusiva un lotto edificabile residenziale ideale per imprese e investitori. Il terreno si trova all'interno di un contesto residenziale recente e ordinato, circondato da villette moderne ed aree verdi che garantiscono privacy e qualità della vita. il lotto ha una superficie totale urbanizzata di circa 760 mq con capacità edificatoria pari a 1.368 mc (equivalenti a circa 456 mq fuori terra), perfetti per la realizzazione di una grande villa bifamiliare o quadrifamiliare. La posizione è strategica: inserito in quartiere silenzioso ma vicino ai principali servizi cittadini, scuole, supermercati e collegamenti stradali.completa l'offerta la possibilità unica di aggiungere fino a 850 mq adiacenti destinati a giardino privato non edificabile, ideali per ampi spazi esterni riservati o zone relax immerse nel verde. L'area è già completamente urbanizzata (strade asfaltate, parcheggi comuni come da planimetria allegata) facilitando tempi rapidi d'intervento edilizio.ottima soluzione sia per chi desidera sviluppare nuove unità abitative dall'alto valore immobiliare sia come investimento duraturo grazie alla crescente domanda locale.prezzo richiesto solo €120.000! non lasciarti sfuggire questa opportunità rara sul mercato montichiarese.per maggiori informazioni o fissare una visita senza impegno contatta subito l'agenzia di riferimento al : siamo disponibili ad accompagnarti passo dopo passo verso il tuo nuovo progetto immobiliare.'dati e immagini hanno valore indicativo e saranno confermati in sede di appuntamento. Le foto possono includere render illustrativi; l'indirizzo indica la zona e non l'ubicazione precisa.'