home page > Annunci immobiliari in Italia > Lombardia > Brescia > Pralboino > Negozi uffici capannoni in vendita > Scheda immobile

Negozi uffici capannoni in vendita a Pralboino

COMPILA IL MODULO SOTTOSTANTE PER RICEVERE MAGGIORI INFORMAZIONI







Invia la richiesta ad altre agenzie
Accetto il trattamento dei miei dati



Quimmo agency

Via galileo galilei 6
48018 Faenza (RA)

0299944698

Pralboino
Prezzo: € 175.000
C
2
136



Descrizione:
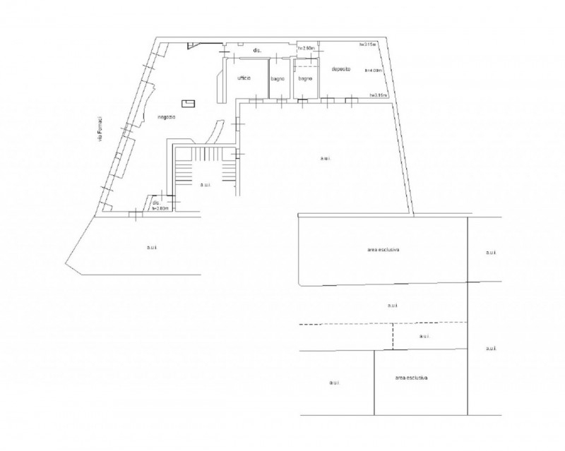
Proponiamo in vendita un negozio con due ampie vetrine situato a pralboino, in via fornaci 6/8, in posizione facilmente accessibile e con buona visibilità dalla strada.l'unità, posta al piano terra, si sviluppa con un ampio spazio commerciale adatto all'accoglienza del pubblico, affiancato da locali di servizio funzionali all'attività, tra cui ufficio, servizi igienici e deposito. La distribuzione interna consente una gestione flessibile degli spazi, rendendo l'immobile idoneo a diverse tipologie di attività commerciali o di servizio.completano la proprietà due aree esclusive adibite a parcheggio, un valore aggiunto rilevante sia per la clientela sia per il personale, che garantisce comodità di accesso e fruibilità quotidiana.la soluzione rappresenta un'interessante opportunità per chi è alla ricerca di un locale commerciale ben visibile, con spazi accessori e parcheggi privati in una zona servita del comune.




Caratteristiche immobile:
Codice inserzione: 1772596121
Rif. Annuncio: 2638635
Provincia: Brescia
Comune: Pralboino
Superficie (Mq) : 136 Mq.
Tipo immobile: Negozi uffici capannoni
Stato immobile: usato
Bagni: 2

Costi:
Prezzo € 175.000


Efficienza energetica:
Classe energetica: C
Riscaldamento: autonomo