home page > Annunci immobiliari in Italia > Lombardia > Brescia > Puegnago sul Garda > Terreni in vendita > Scheda immobile

Terreni in vendita a Puegnago sul Garda

COMPILA IL MODULO SOTTOSTANTE PER RICEVERE MAGGIORI INFORMAZIONI







Invia la richiesta ad altre agenzie
Accetto il trattamento dei miei dati



Venturoli&partners di venturoli riccardo

Via delle fiamme verdi 2
25081 Bedizzole (BS)

030675076    Riferimenti: Riccardo Venturoli

Puegnago sul Garda
Prezzo: info in agenzia
G
6466



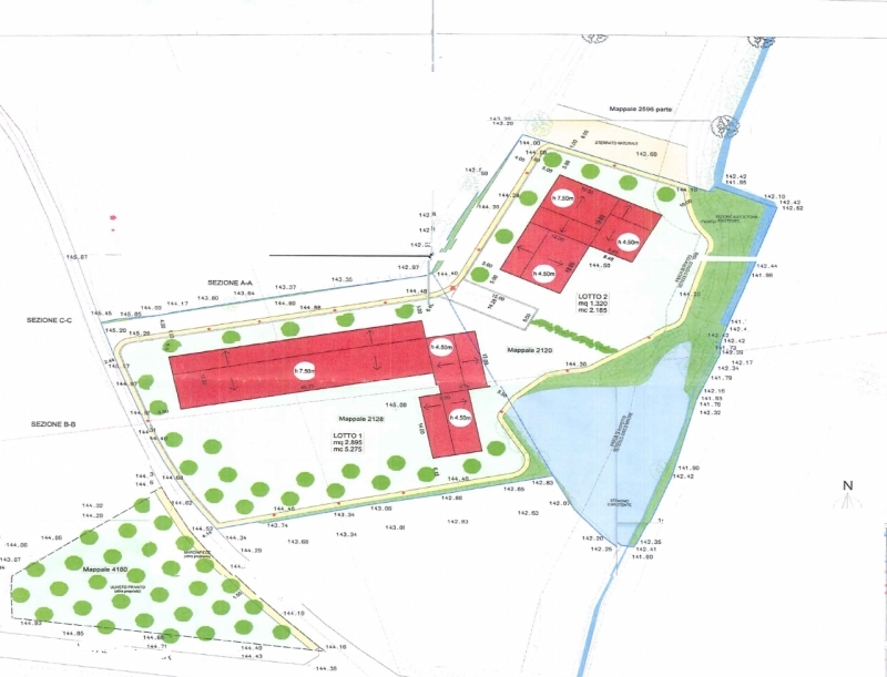
Descrizione:
Situato nel suggestivo comune di puegnago sul garda, questo terreno edificabile residenziale offre un'opportunità unica per lo sviluppo immobiliare. Con una dimensione di 6466 metri quadrati e un'elevata capacità volumetrica pari a mc 7600, il terreno è idoneo per la realizzazione di progetti imprenditoriali o la costruzione di un residence. Immerso in un lussureggiante ambiente verde arricchito dalla presenza di ulivi secolari, il sito ha già ottenuto parere positivo dalla soprintendenza per il suo riconvertimento da vecchio edificio commerciale. La sua posizione strategica nelle vicinanze del lago di garda e delle principali vie d'accesso lo rende altamente desiderabile sia dal punto di vista turistico che commerciale. Inoltre, è possibile valutare anche la permuta totale direttamente sul posto con le demolizioni a carico del venditore. Per ulteriori informazioni e dettagli sulla proprietà, ci si può rivolgere all'ufficio situato in via delle fiamme verdi 2 a bedizzole (bs) nei seguenti orari: lunedù-venerdù dalle 9:00 alle 12:30 e dalle 14:30 alle 19:00; sabato mattina su appuntamento.




Caratteristiche immobile:
Codice inserzione: 1755485360
Rif. Annuncio: GV024
Provincia: Brescia
Comune: Puegnago sul Garda
Superficie (Mq) : 6466 Mq.
Tipo immobile: Terreni
Anno costruzione/ristrutturazione: 2019

Costi:
Prezzo info in agenzia


Efficienza energetica:
Classe energetica: G
Indice di prestazione energetica (EPgl): 200 kWh/mc annui