home page > Annunci immobiliari in Italia > Lombardia > Brescia > Sirmione > appartamenti in vendita > Scheda immobile

Appartamento in vendita a Sirmione

COMPILA IL MODULO SOTTOSTANTE PER RICEVERE MAGGIORI INFORMAZIONI







Invia la richiesta ad altre agenzie
Accetto il trattamento dei miei dati



Gardaffare sirmione

Via brescia, 9
25019 Sirmione (BS)

0309905461    Riferimenti: Massimo Beltrami

Sirmione
Prezzo: € 450.000
G
2
2
110
Piano terra
600 Mq



Descrizione:
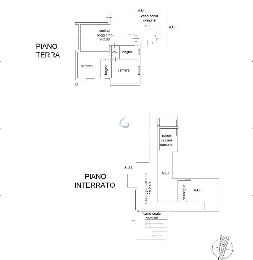
Sirmionea pochi passi dal lago e dai servizi di colombare, proponiamo ampio appartamento trilocale in residence di sole 9 unità con ampio parco verde. L'appartamento è stato ristrutturato un paio di anni fa ed è composto da: ingresso, ampio soggiorno con cucina a vista, disimpegno, bagno di servizio, camera matrimoniale, seconda camera matrimoniale con bagno privato. Esternamente la proprietà ha un portico di 20 mq collegato con il giardino condominiale. Riscaldamento autonomo, aria condizionata, serramenti in pvc, portoncino blindato, pavimenti in gres porcellanato, bagni ristrutturati, mobili in buono stato. Completa la proprietà una cantina ed un posto auto coperto.richiesta euro 450.000.classe energetica 'g'.maggiori info e sopralluoghi,gardaffare tel: Rif. 24-65.




Caratteristiche immobile:
Codice inserzione: 1759118685
Rif. Annuncio: h37-24-65
Provincia: Brescia
Comune: Sirmione
Superficie (Mq) : 110 Mq.
Tipo immobile: Appartamento
Stato immobile: ristrutturato
Anno costruzione/ristrutturazione: 1985
Piano: Piano terra
Camere: 2
Stato al rogito: Libero
Garage: Singolo
Giardino : 600 Mq.
Tipologia giardino : Condominiale
Bagni: 2
Terrazze: 2

Costi:
Prezzo € 450.000
Spese condominiali: € 1600


Efficienza energetica:
Classe energetica: G
Riscaldamento: autonomo
Tipologia riscaldamento: Metano