Descrizione:
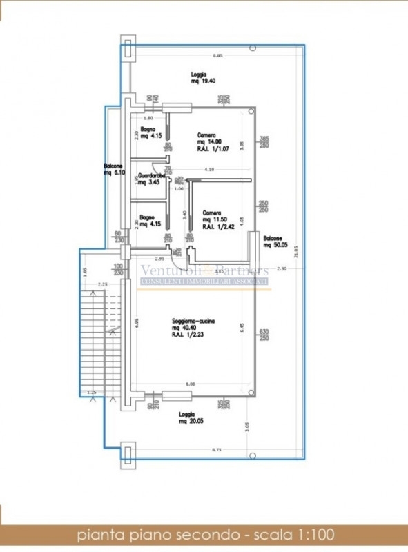
A toscolano maderno, in zona collinare e comoda ai servizi e alle spiagge attico con vista lago spettacolare inserito in un prestigioso piccolo complesso di sole cinque unità abitative. l'attico si trova all'ultimo piano ed e' servito da ascensore. E' composto da ampia zona living che grazie a grandi vetrate scorrevoli si estende all'esterno sulla loggia con vista sulla piscina e sul lago.nella zona notte troviamo la camera padronale dotata di bagno e guardaroba, e una seconda camera matrimoniale con bagno.all'ultimo piano con totale vista lago ampio solarium di 185 mq con zona jacuzzi e area relax.completa la proprietà box auto. La casa è progettata per dare la massima efficienza energetica classe a4 e comfort.l'edificio è all'interno di un'area esclusiva di 3.000 mq che ospita una bellissima piscina a sfioro e un parco curato con vista lago straordinaria.tempi di consegna estate 2024 - possibilità arredamento.