Descrizione:
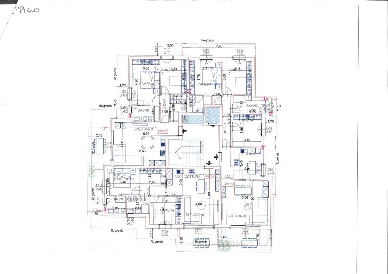
Scopri il tuo nuovo appartamento a canzo!in prossima realizzazione, proponiamo eleganti appartamenti con finiture di alta qualità e possibilità di personalizzazione.tutti gli appartamenti sono dotati di:- terrazzo o giardino- autorimessa- classe energetica a3 (valore di progetto 33,87 kwh/m2a) - serramenti in pvc a taglio termico con tapparelle motorizzate in alluminio coibentato- portoncino blindato antisfondamento- impianto di riscaldamento a pavimento con pompa di calore aria/acqua- predisposizione per la climatizzazione estiva con raffrescamento a pavimento- impianto fotovoltaico- impianto di trattamento aria (vmc)- impianto induzione per uso domestico- impianto videocitofono- predisposizione impianto allarmetipologia trilocale piano primo 04: ingresso, soggiorno con cucina a vista e uscita sul terrazzo, disimpegno notte, camera matrimoniale, seconda camera con balcone, 2 bagni. Autorimessa. Prezzo: €. 282.000,00 + iva.contattaci per scoprire di più e prenotare la tua visita, non perderti questa occasione!classe energetica: 33,87 kwh/m2 a