home page > Annunci immobiliari in Italia > Lombardia > Como > Mariano Comense > appartamenti in vendita > Scheda immobile

Appartamento in vendita a Mariano Comense

COMPILA IL MODULO SOTTOSTANTE PER RICEVERE MAGGIORI INFORMAZIONI







Invia la richiesta ad altre agenzie
Accetto il trattamento dei miei dati



Immobiliare borromeo

Via borromeo , 16
20811 Cesano Maderno (MB)

0362509099    3440963021    Riferimenti: IMMOBILIARE BORROMEO

Mariano Comense
Prezzo: € 127.000
C
1
62



Descrizione:
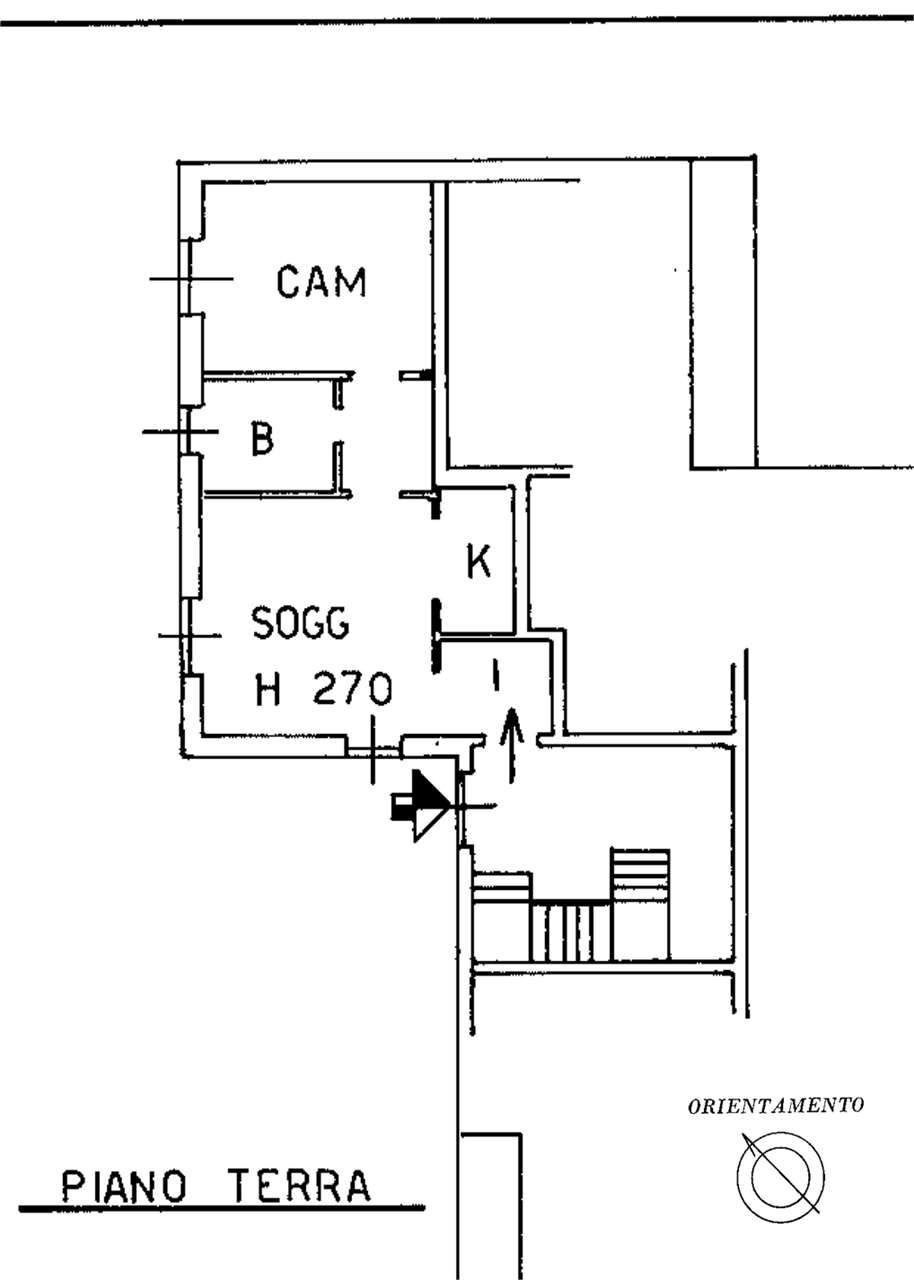
In posizione comoda e ben servita, a pochi passi dal centro storico di mariano comense e a soli 200 metri dalla stazione ferroviaria, proponiamo in vendita un bilocale in buone condizioni, situato al piano terra di una palazzina all'interno di un curato complesso residenziale composto da tre edifici e dotato di ampio parco condominiale.l'appartamento si compone di: ingresso che conduce alla zona giorno con angolo cottura, disimpegno, camera da letto matrimoniale e bagno finestrato. a completare la proprietà: una cantina e un posto auto coperto in autorimessa al piano interrato. Ulteriore posto auto non di proprietà disponibile nel cortile comune (ad esaurimento posti).dotazioni: serramenti in alluminio con doppi vetri, porta blindata, riscaldamento autonomo con caldaia a condensazione.spese condominiali contenute: circa €1.000/anno." ideale per chi cerca comodità, tranquillità e servizi a portata di mano, in un contesto verde e ben curato. Perfetto anche come investimento o prima casa.classe energetica: c




Caratteristiche immobile:
Codice inserzione: 1768781563
Rif. Annuncio: 127CV
Provincia: Como
Comune: Mariano Comense
Superficie (Mq) : 62 Mq.
Tipo immobile: Appartamento
Camere: 1

Costi:
Prezzo € 127.000


Efficienza energetica:
Classe energetica: C