home page > Annunci immobiliari in Italia > Lombardia > Como > Olgiate Comasco > Terreni in vendita > Scheda immobile

Terreni in vendita a Olgiate Comasco

COMPILA IL MODULO SOTTOSTANTE PER RICEVERE MAGGIORI INFORMAZIONI







Invia la richiesta ad altre agenzie
Accetto il trattamento dei miei dati



Immobilfin s.a.s.

Via mentana, 4
22100 Como

031265315

Olgiate Comasco
Prezzo: € 400.000
2800



Descrizione:
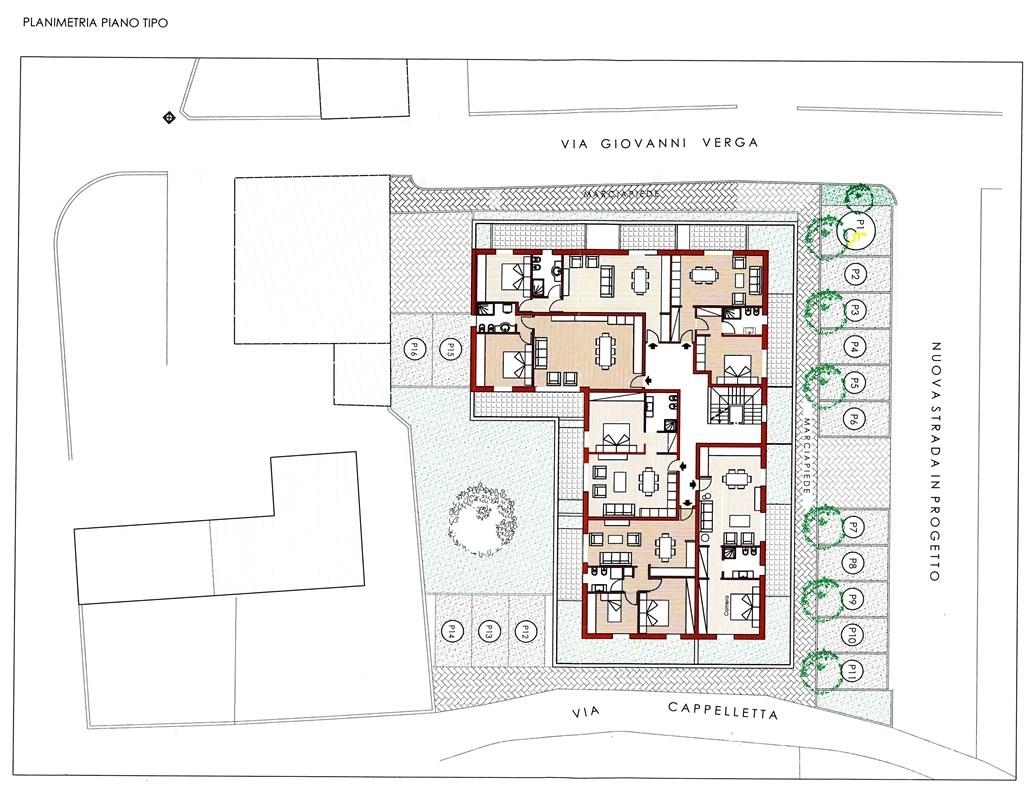
Zona centrale vendiamo rustico con possibilita' di edificare (dopo la demolizione) complessivi 2.800 metri cubi ca progetto approvato per 15 bilocali con possbilita' di accorpamenti in tri/quadrilocali.piano seminterrato con autorimesse.gli appartamenti al piano terreno possono godere di un giardino privato.il proprietario potrebbe accettare una totale permuta




Caratteristiche immobile:
Codice inserzione: 1760587425
Rif. Annuncio: 287
Provincia: Como
Comune: Olgiate Comasco
Superficie (Mq) : 2800 Mq.
Tipo immobile: Terreni
Stato immobile: usato da riattare
Stato al rogito: Libero

Costi:
Prezzo € 400.000
Spese condominiali: € 0


Efficienza energetica: