home page > Annunci immobiliari in Italia > Lombardia > Como > Rovellasca > appartamenti in vendita > Scheda immobile

Appartamento in vendita a Rovellasca

COMPILA IL MODULO SOTTOSTANTE PER RICEVERE MAGGIORI INFORMAZIONI







Invia la richiesta ad altre agenzie
Accetto il trattamento dei miei dati



Immobiliare canturina

Via dei mille, 5
22063 Cantù (CO)

031701396    3484205749    Riferimenti: Bidoggia Monica

Rovellasca
Prezzo: € 273.000
A1
2
98



Descrizione:
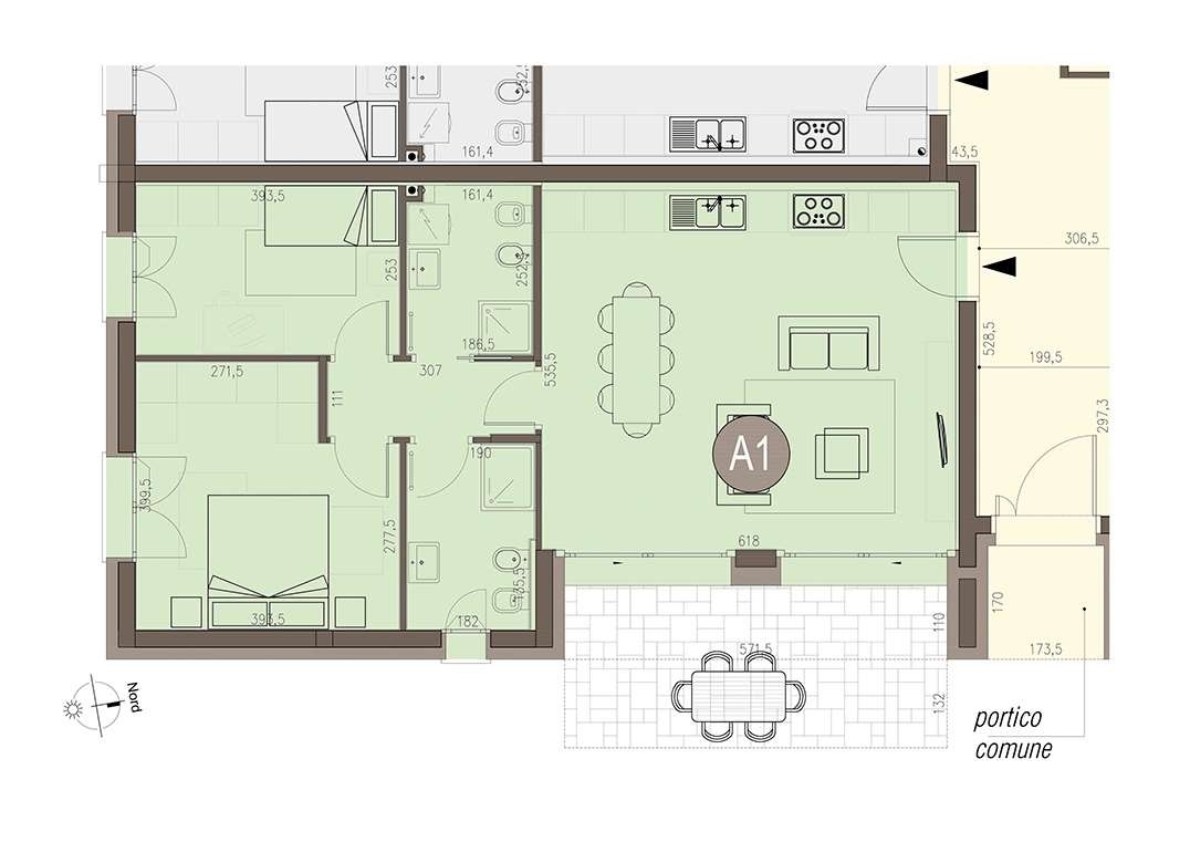
In una tranquilla zona residenziale, a pochi passi dalla stazione e dal centro del paese, proponiamo splendido trilocale, in una nuova palazzina in fase di costruzione, con doppi servizi e giardino privato. L'abitazione è composta da una luminosa zona giorno con cucina a vista e affaccio sul portico, ideale per pranzi e cene all'aperto, una camera matrimoniale, una cameretta e due bagni finestrati. Il tutto impreziosito da un curato giardino di proprietà, perfetto per chi desidera uno sfogo esterno riservato. L'immobile vanta finiture di ottimo capitolato e un'elevata efficienza energetica grazie al riscaldamento a pavimento, la pompa di calore alimentata da impianto fotovoltaico, pannelli solari per la produzione di acqua calda sanitaria e con la possibilità di personalizzazione degli interni. Soluzione ideale per chi cerca comfort, indipendenza e risparmio energetico, in una posizione comoda e ben servita. Casse energetica a. Richiesta euro 273.000,00. Per informazione o appuntamenti oscar colombo vincolo contrattuale e tutte le caratteristiche inerenti gli immobili pubblicati e le misure eventualmente rilevate o indicate devono considerarsi indicative.classe energetica: a




Caratteristiche immobile:
Codice inserzione: 1768954242
Rif. Annuncio: V001974
Provincia: Como
Comune: Rovellasca
Superficie (Mq) : 98 Mq.
Tipo immobile: Appartamento
Camere: 2

Costi:
Prezzo € 273.000


Efficienza energetica:
Classe energetica: A1