Descrizione:
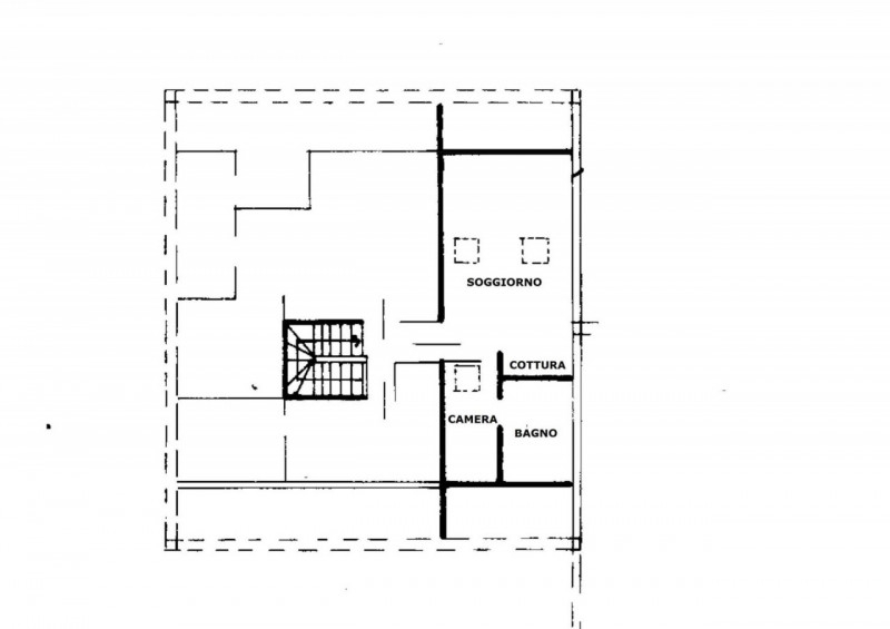
Appartamento di 60mq +box incluso ad indovero (casargo) situato in alta valsassina appartamento ad uso civile abitazione a piano secondo (mai abitato e in ottimo stato), a parte di una palazzina sita in comune di casargo, frazione indovero (alta valsassina), composto da due locali, oltre cucina, bagno, un balcone e corridoio (totale appartamento circa mq.60), con annesso un box rimessa auto pertinenziale incluso nel prezzo e disponibili posti auto esterni x parcheggio dei condomini. L'appartamento è dotato di caldaia autonoma (nuova e mai utilizzata) e viene venduto arredato. Gli impianti vengono garantiti conformi all'epoca della loro realizzazione, ma privi di certificazioni relative. Vendita tra privati, no agenzie. Prezzo euro 39.000 (incluso il box). Visionabile solo nei weekend previo appuntamento. Tel ref:92665