home page > Annunci immobiliari in Italia > Lombardia > Mantova > Bagnolo San Vito > appartamenti in vendita > Scheda immobile

Appartamento in vendita a Bagnolo San Vito

COMPILA IL MODULO SOTTOSTANTE PER RICEVERE MAGGIORI INFORMAZIONI







Invia la richiesta ad altre agenzie
Accetto il trattamento dei miei dati



Immobiliare studio virgilio di valenza jolena

Via f.lli cervi 46
46034 Borgo Virgilio (MN)

.0376.1697786

Bagnolo San Vito
Prezzo: € 250.000
3
2
120
Ultimo piano



Descrizione:
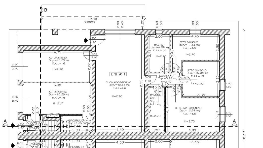
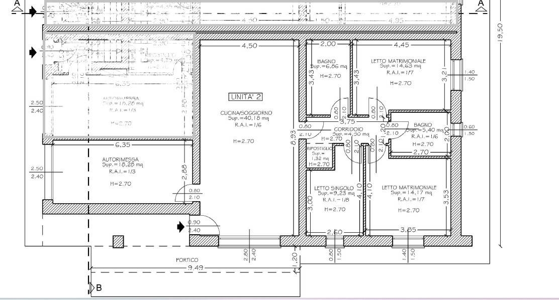
Bagnolo san viro loc. San biagio: nuova edificazione di costruzione quadrifamiliare, tutte con ingresso indipendente. Proponiamo in vendita due soluzioni a piano terra con giardino privato.entrati nell'abitazione si trova l'ampia zona giorno di 40 mq con salotto e cucina a vista. La zona notte si compone di tre camere da letto e 2 bagni. Giardino privato di 200 mq.classe energetica 'a4', riscaldamento a pavimento, pannelli fotovoltaici per 6kw, batterie per 9 kw, ventilazione meccanica centralizzata, isolamento termico integrato normablok (antigrandine), impianto di riscaldamento in pompa di calore, finestre basso emissivi, tapparelle elettriche, basculante carraia automatica. possibilita' di diversa distribuzione interna - maggiori dettagli in ufficio classe energetica: a4




Caratteristiche immobile:
Codice inserzione: 1770004623
Rif. Annuncio: 6495RA13345
Provincia: Mantova
Comune: Bagnolo San Vito
Zona: San Biagio  
Superficie (Mq) : 120 Mq.
Tipo immobile: Appartamento
Stato immobile: nuovo
Piano: Ultimo piano
Camere: 3
Garage: Singolo
Bagni: 2

Costi:
Prezzo € 250.000


Efficienza energetica: